الرئيسية
المستقلين
هدير ز.
معرض الأعمال
اطلب عمل مماثل
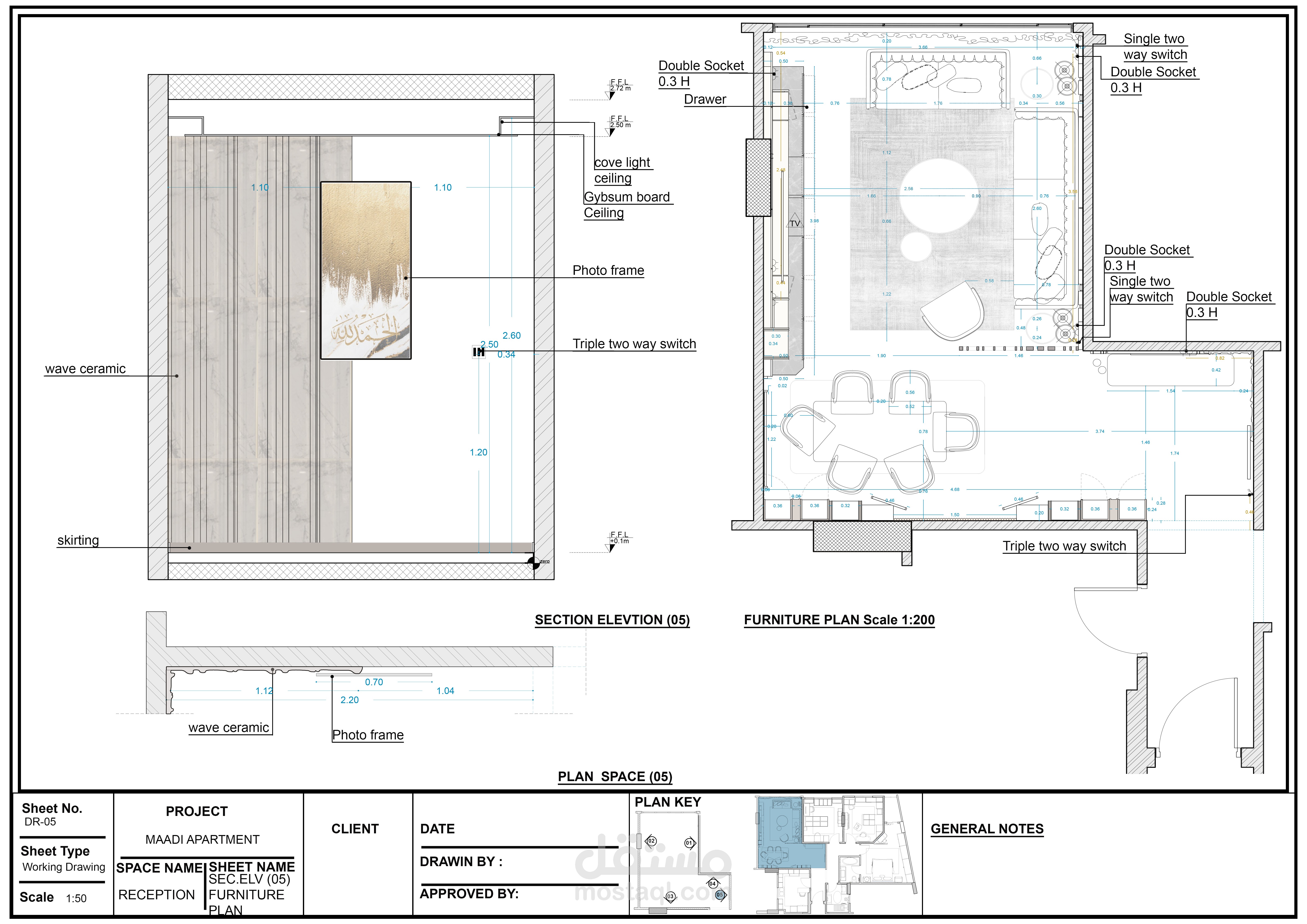
Reception Shop drawings
تفاصيل العمل
Interior shops drawings in a visual and easy-to-implement manner
بطاقة العمل
اسم المستقل
هدير ز.
عدد الإعجابات
0
عدد المشاهدات
22
تاريخ الإضافة
07/05/2023
المهارات
3ds Max
فوتوشوب
أوتوكاد
×