الرئيسية
المستقلين
Ahmed G.
معرض الأعمال
اطلب عمل مماثل
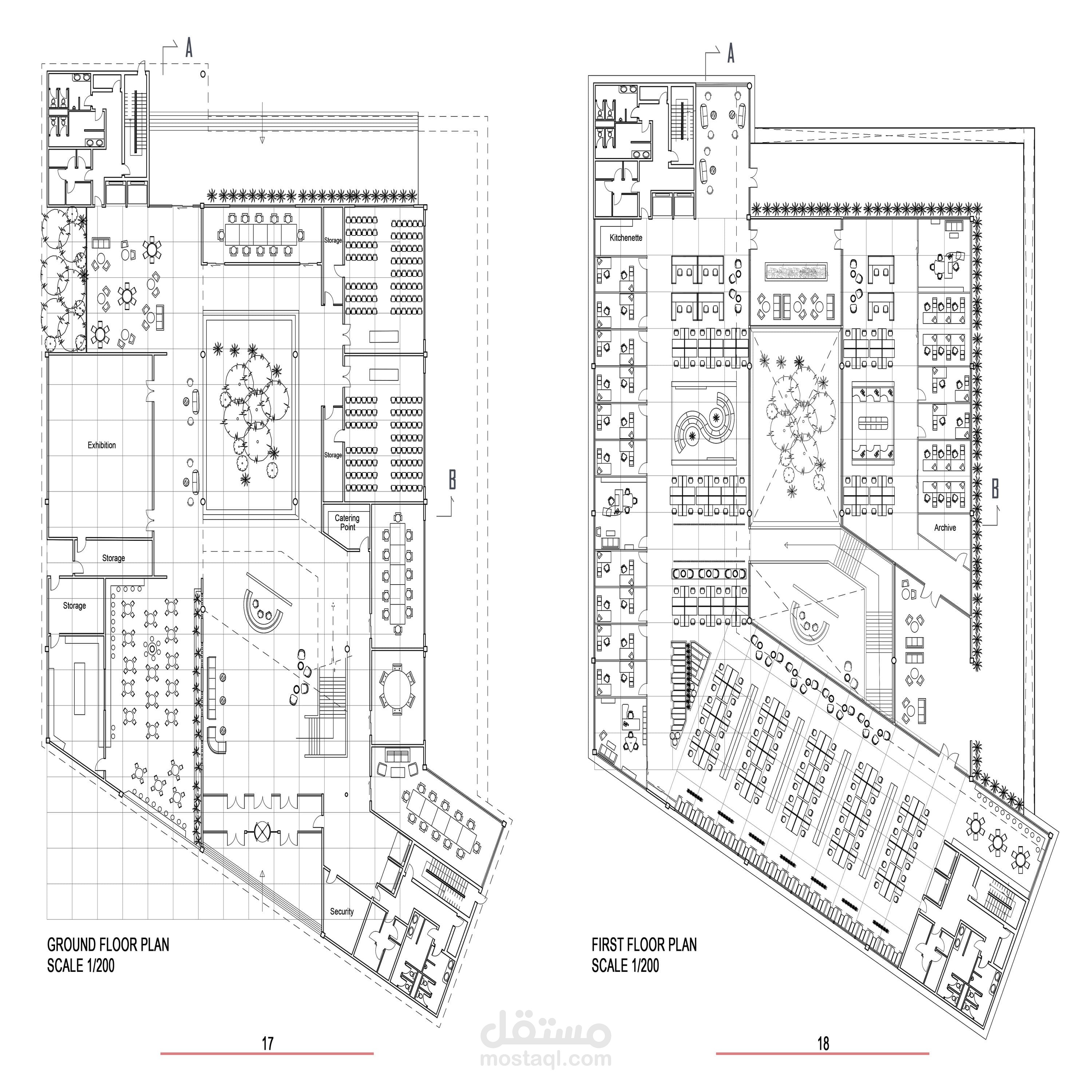
تصميم مبنى ادارى
تفاصيل العمل
تصميم لمبنى ادارى بأستخدام برنامج الRevit
بطاقة العمل
اسم المستقل
Ahmed G.
عدد الإعجابات
0
عدد المشاهدات
43
تاريخ الإضافة
03/05/2023
المهارات
ريفيت
×