الرئيسية
المستقلين
Esraa A.
معرض الأعمال
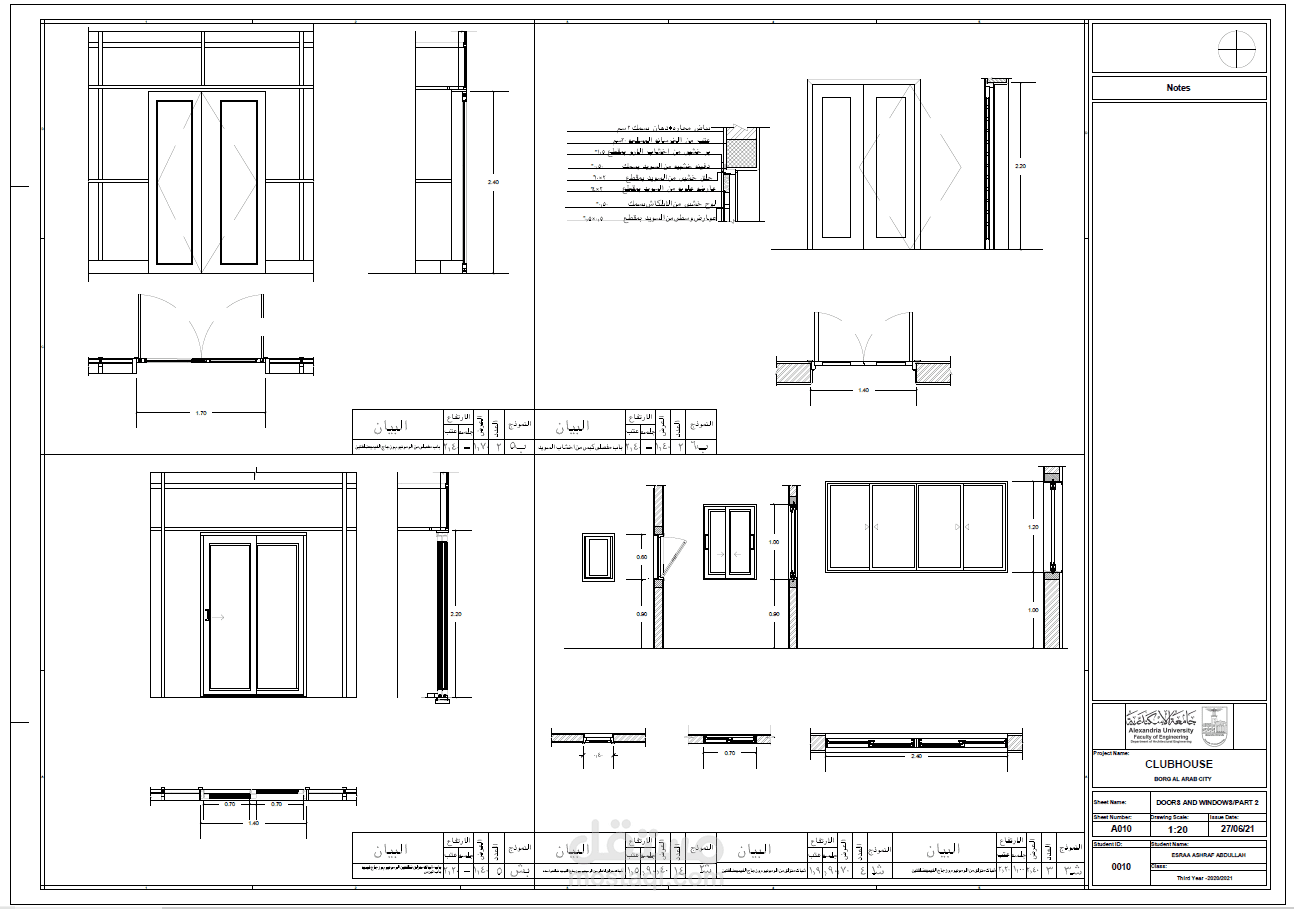
Execution Drawing for the Clubhouse
معرض الأعمال
اطلب عمل مماثل
تفاصيل العمل
رسومات تنفييه لنادى
بطاقة العمل
اسم المستقل
Esraa A.
عدد الإعجابات
0
عدد المشاهدات
67
تاريخ الإضافة
10/02/2023
×