الرئيسية
المستقلين
Esraa A.
معرض الأعمال
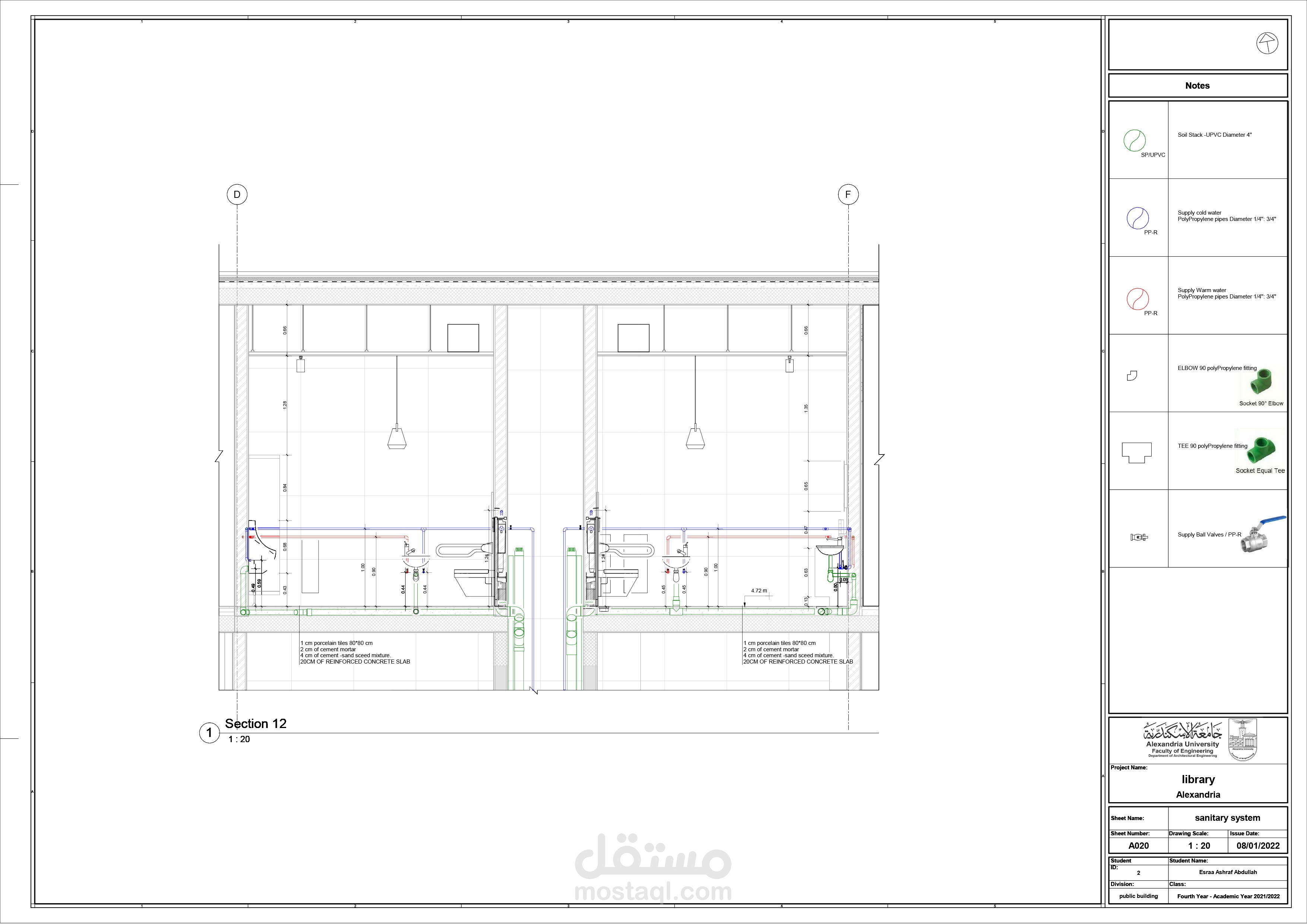
Execution drawings for a public library
معرض الأعمال
اطلب عمل مماثل
تفاصيل العمل
رسومات تنفييه لمكتبه عامه
بطاقة العمل
اسم المستقل
Esraa A.
عدد الإعجابات
0
عدد المشاهدات
183
تاريخ الإضافة
10/02/2023
×