تفاصيل العمل

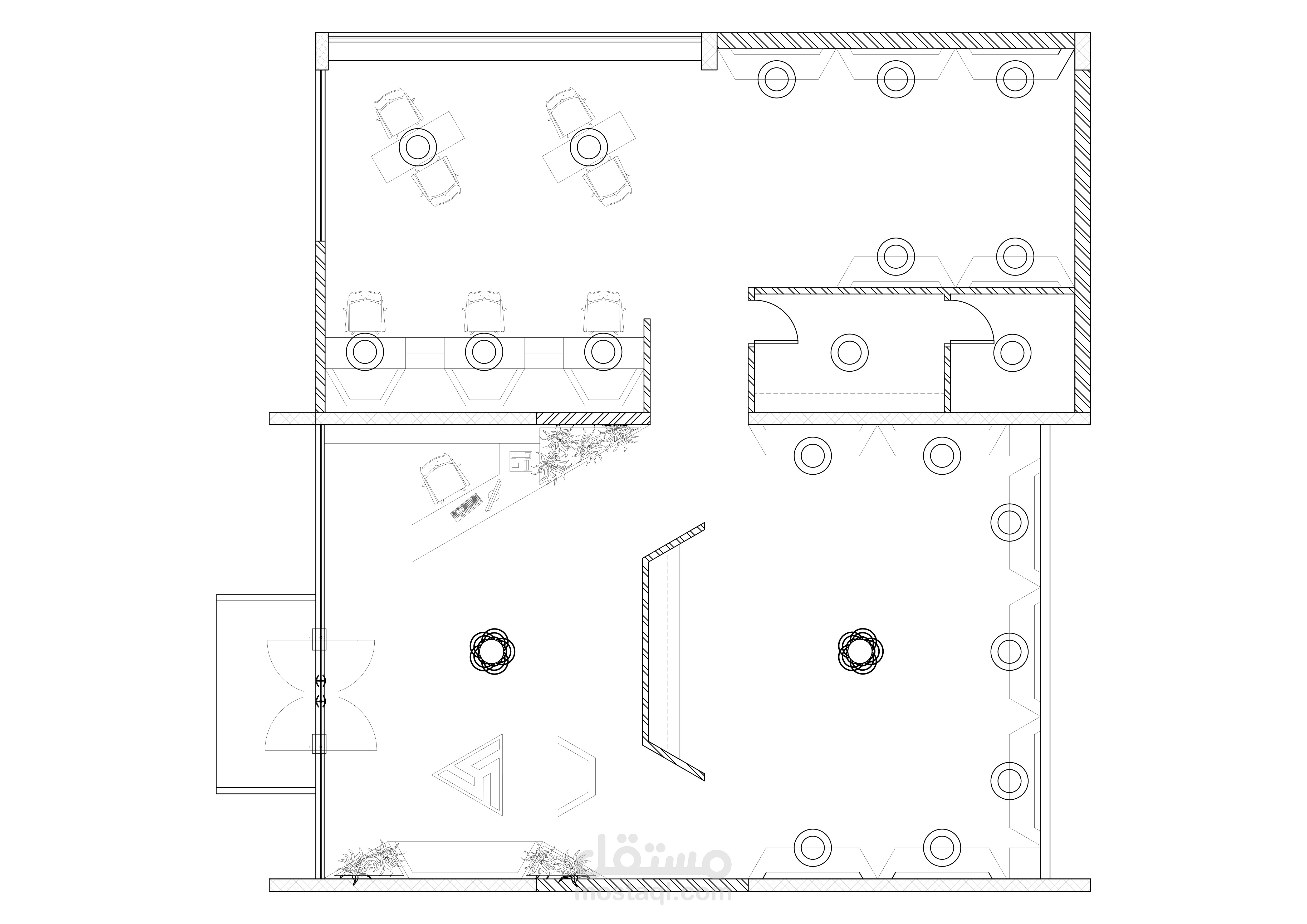
صالون حلاقة نسائية مكان استقبال وتصميم شعر وتجميل وعناية بالبشرة.

تم الرسم على الاوتوكاد ورسم المنظور على الاوتوكاد

الاخراج على الفوتوشوب.

بطاقة العمل

اسم المستقل
عدد الإعجابات
0
عدد المشاهدات
115
تاريخ الإضافة
تاريخ الإنجاز
المهارات