تفاصيل العمل

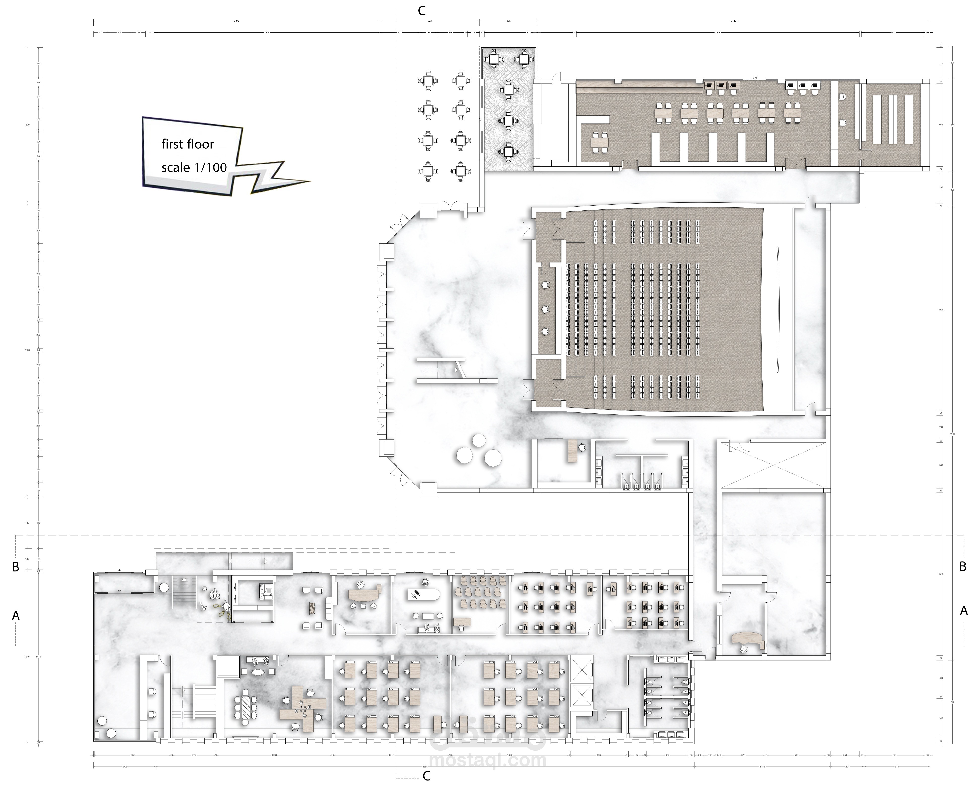
دار نشر لمجلات المانجا وأفلام الانميشن مساحات عمل مشتركة وغرف إدارة ومكان تعليمي،

مكتبة وسينما واماكن تفاعلية وعرض المجسمات والاعمال.

تم توزيع الزونات اولا ثم اختيار افضل حل للتصميم الذي يخدم المشروع وتم توزيع الفرش على الاوتوكاد

ثم رفع البناء على ال 3ds max واخذ اللقطات المناسبة

ثم تمت بعض التعديلات على الفوتوشوب.

بطاقة العمل

اسم المستقل
عدد الإعجابات
0
عدد المشاهدات
38
تاريخ الإضافة
تاريخ الإنجاز
المهارات