الرئيسية
المستقلين
Marwan E.
معرض الأعمال
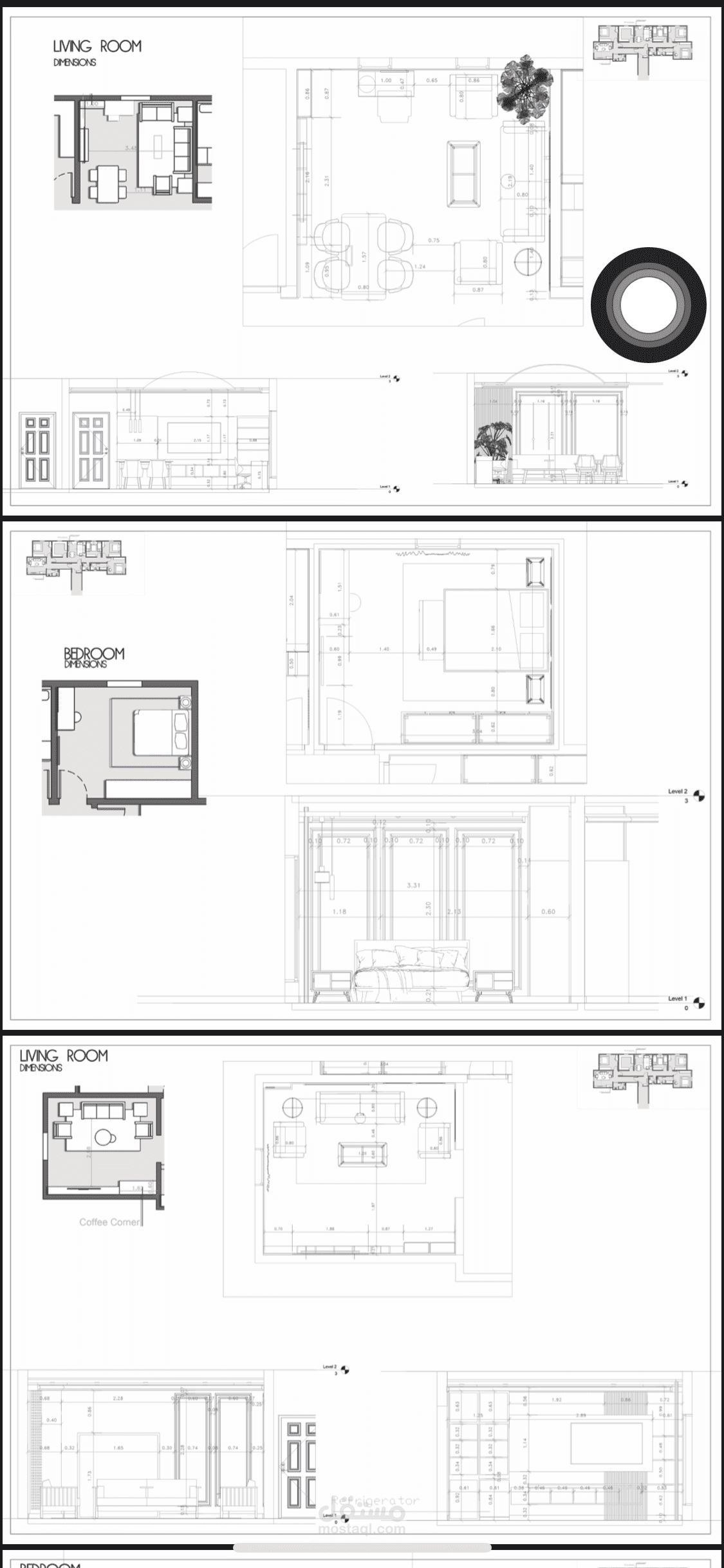
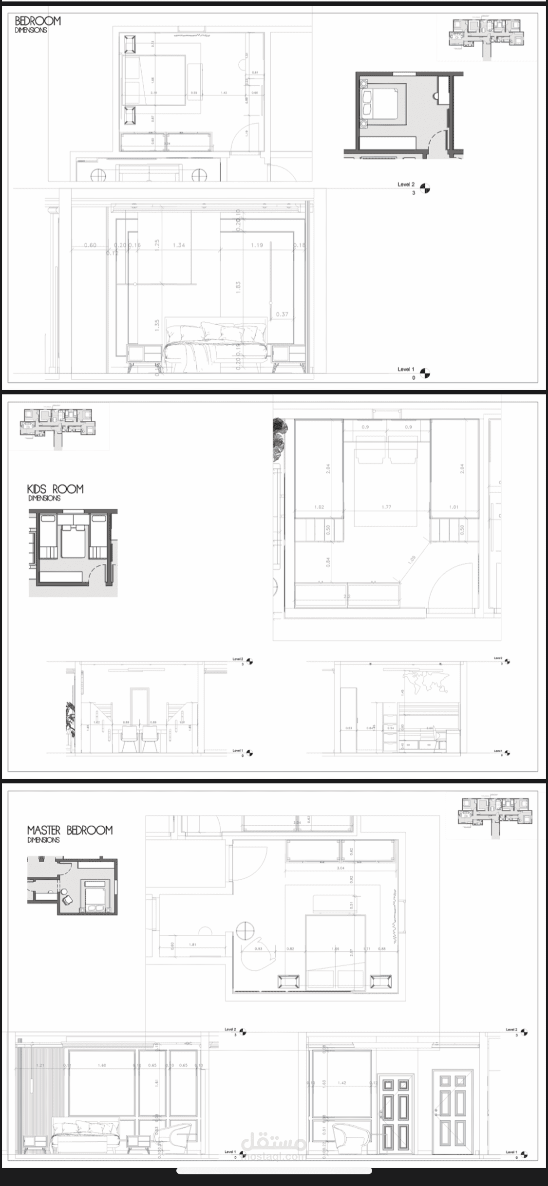
Shop Drawing (رسومات تنفيذية)
معرض الأعمال
اطلب عمل مماثل
تفاصيل العمل
Shop Drawing (رسومات تنفيذية)
بطاقة العمل
اسم المستقل
Marwan E.
عدد الإعجابات
0
عدد المشاهدات
85
تاريخ الإضافة
03/02/2023
×