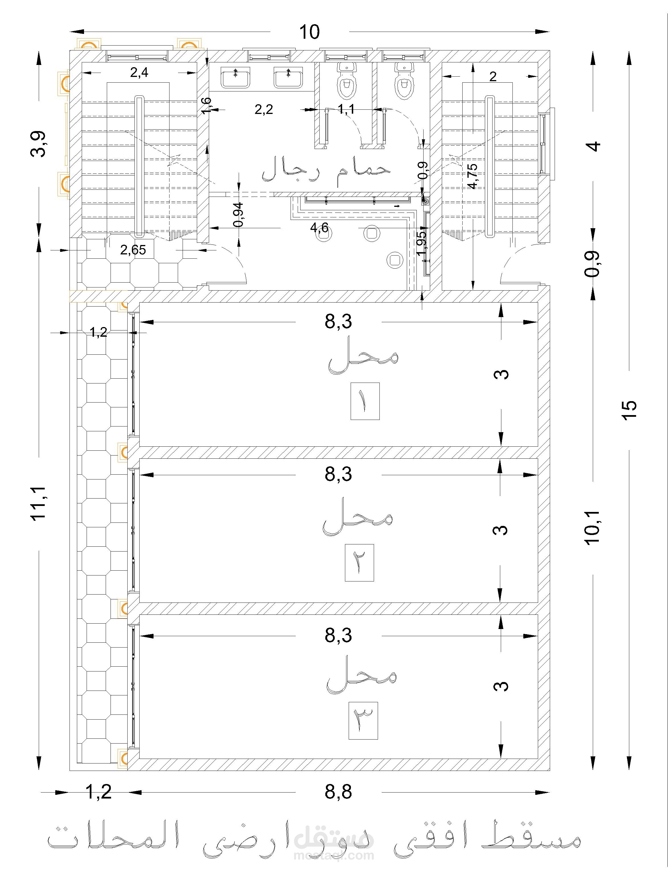
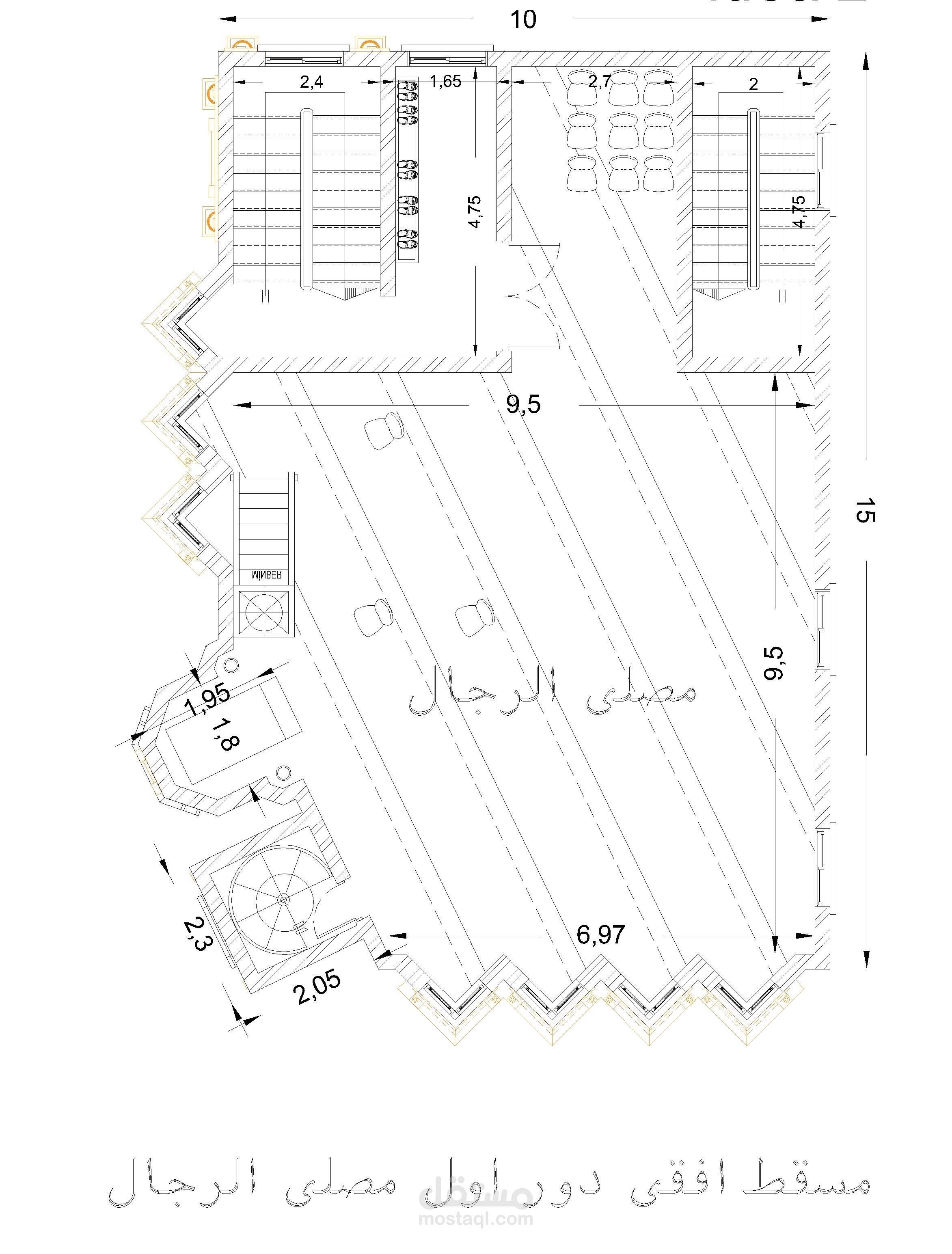
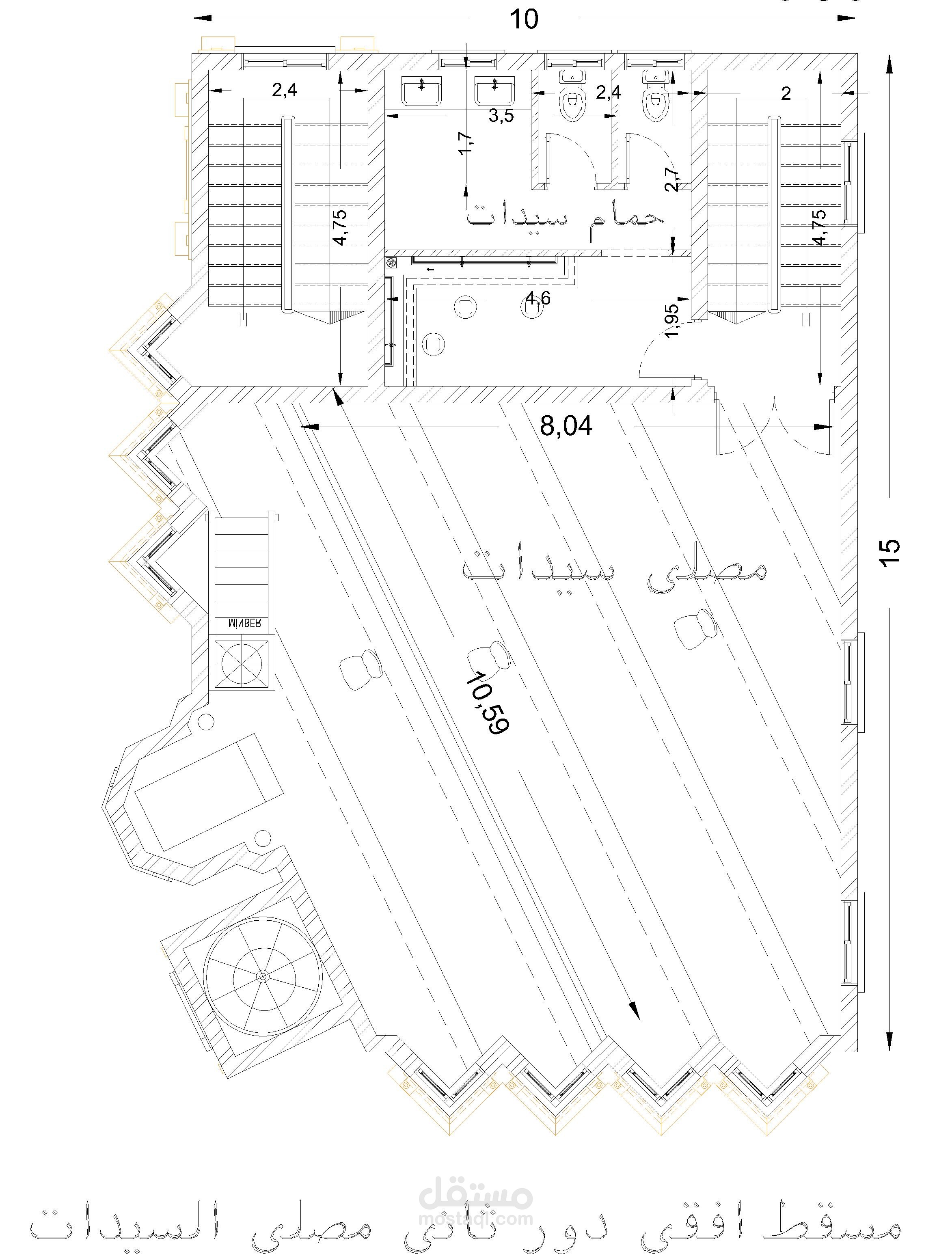
تفاصيل العمل

تصميم مخطط لمسجد يتكون من :

- الدور الارضي محلات تجارية و جزء خدمات للمسجد

- الدور الأول مسجد الرجال

-الدور الثاني مصلي النساء

- دور السطح

*واجهات

*لوحات المشروع مع الاعمدة المعماري

بطاقة العمل

اسم المستقل
عدد الإعجابات
0
عدد المشاهدات
409
تاريخ الإضافة
تاريخ الإنجاز
المهارات