تفاصيل العمل

تصميم فيلا سكنية :

-مناظير

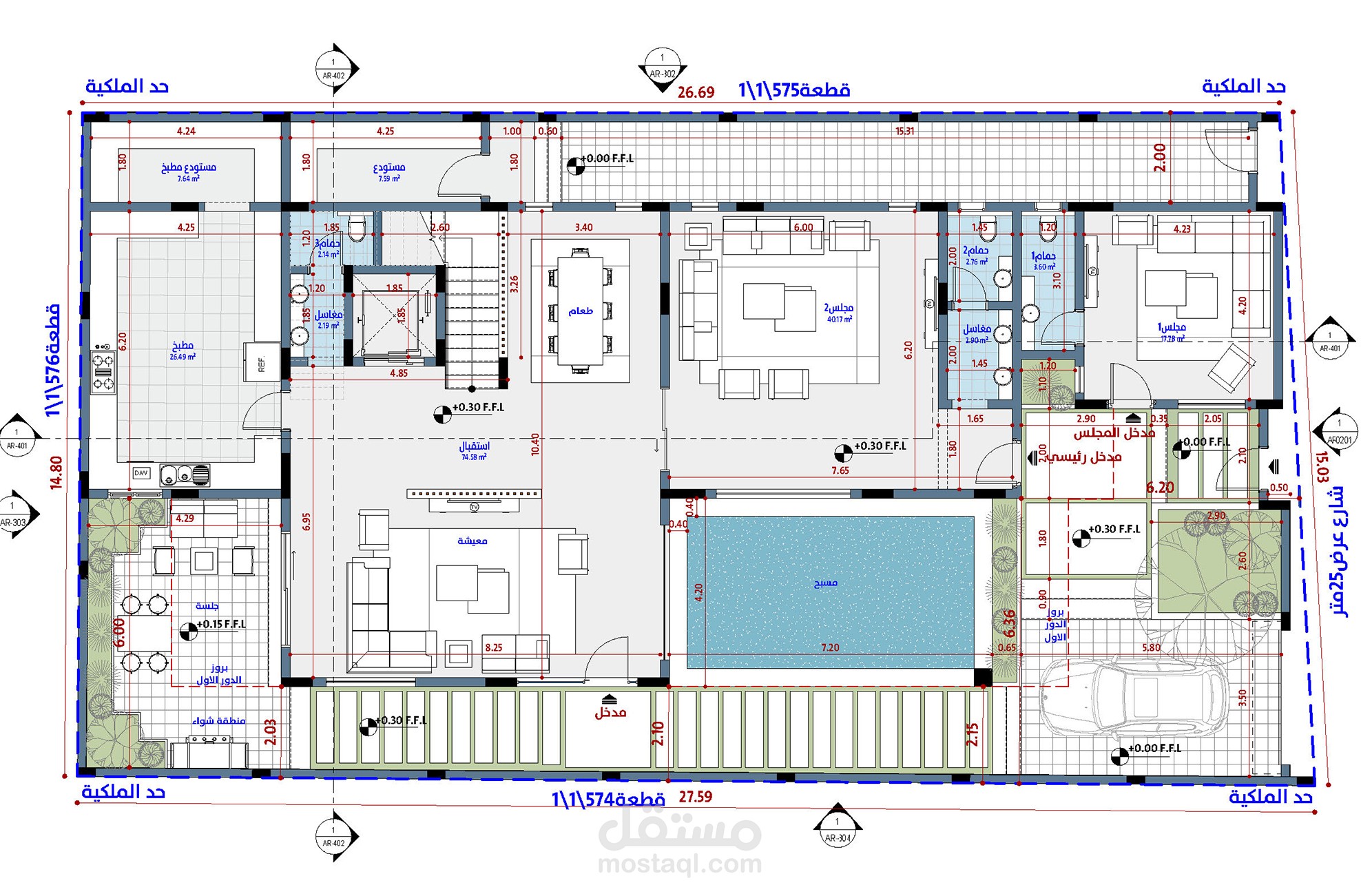
- تصميم المخططات بالابعاد والابواب والشبابيك والمناسيب

- الموقع العام باللاندسكيب بالابعاد

- جداول المساحات

- مخططات توزيع الاثاث لكل فراغ وكل الادوار 2d

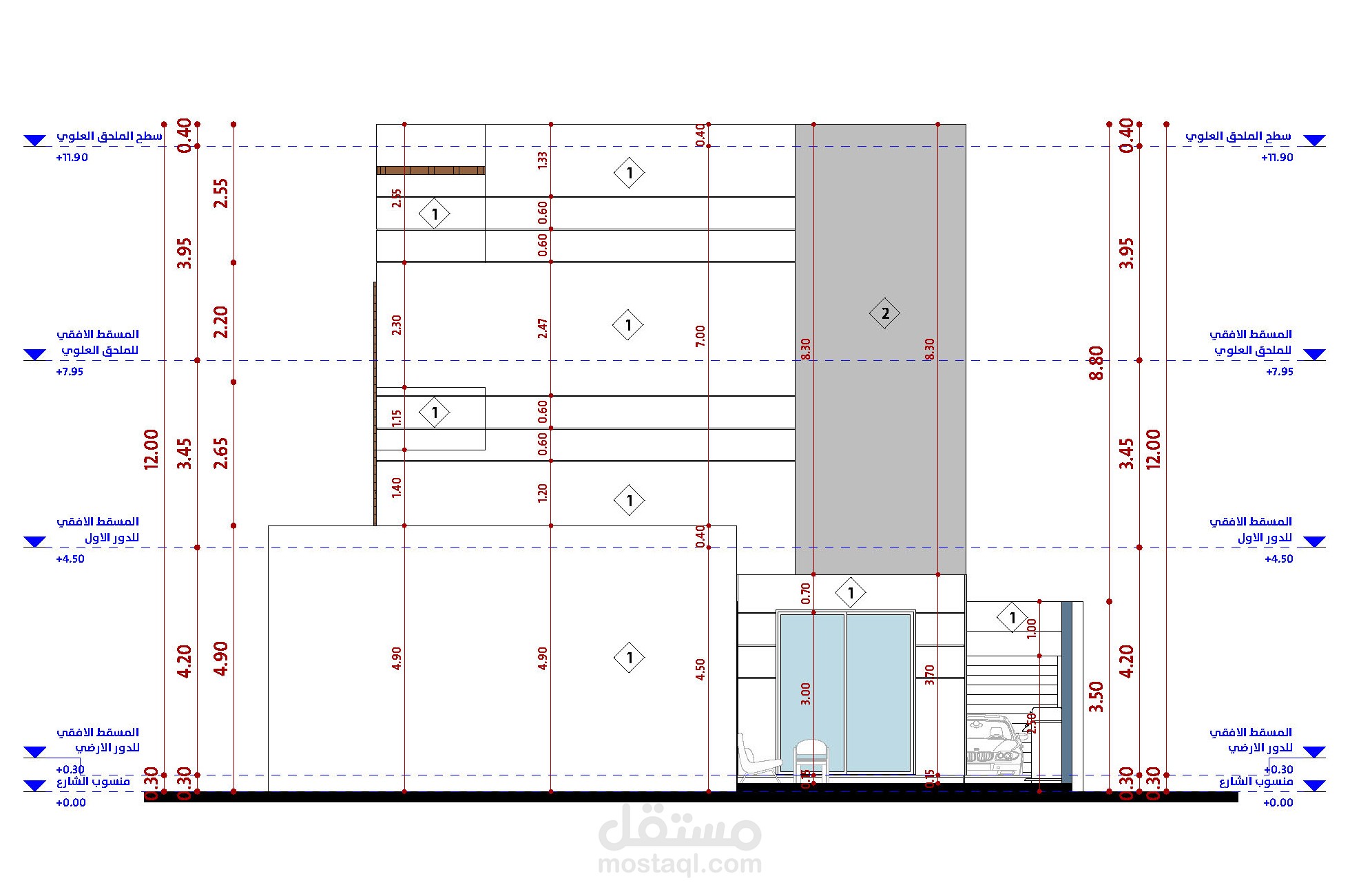
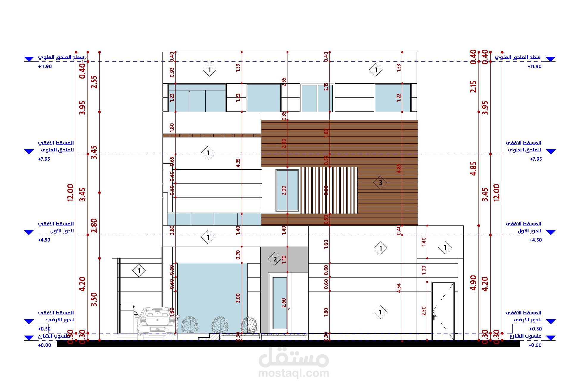
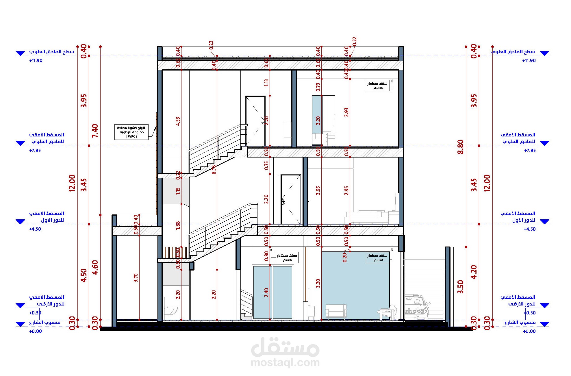
- الواجهات والقطاعات

اخراج اللوحات كمكتب معتمد

بطاقة العمل