الرئيسية
المستقلين
ايمن ا.
معرض الأعمال
اطلب عمل مماثل
SHOP DRAWING ( 5 )
تفاصيل العمل
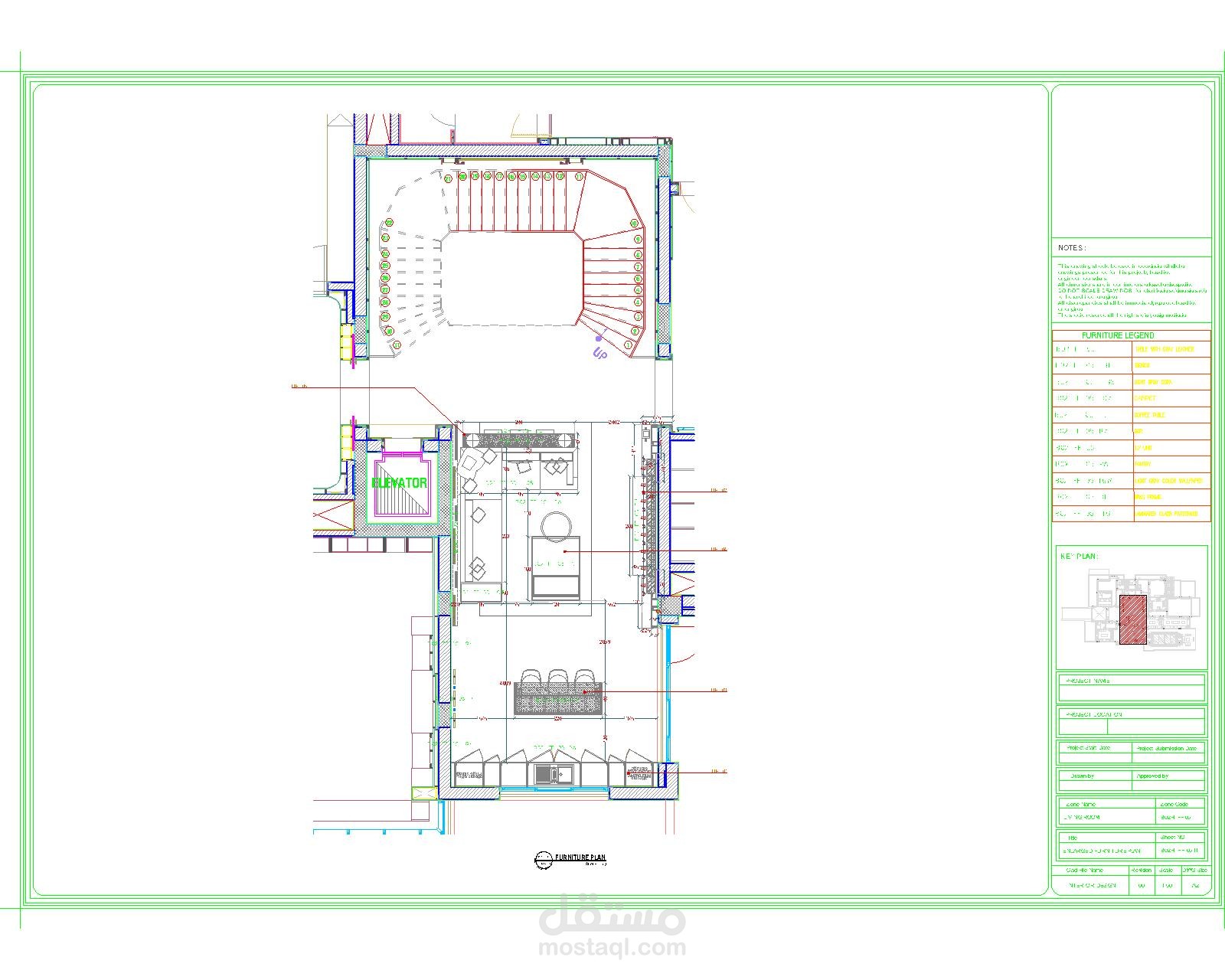
فاملي ليفنج في فيلا موجوده في السعوديه مرفق بعضا من تفاصيل التنفيز وليس كاملا
بطاقة العمل
اسم المستقل
ايمن ا.
عدد الإعجابات
0
عدد المشاهدات
201
تاريخ الإضافة
19/12/2022
×