تفاصيل العمل

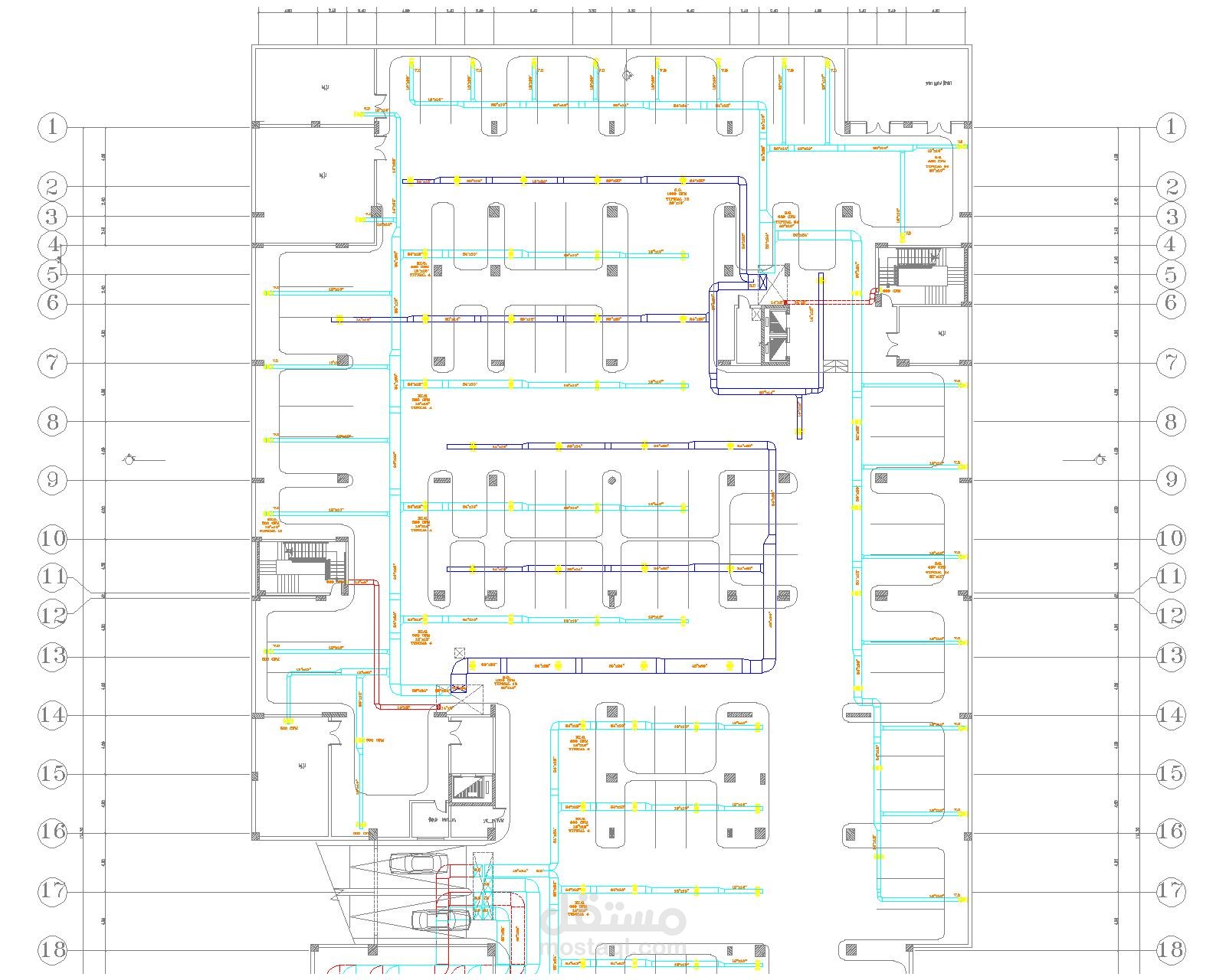
بعض التفاصيل الخاصه بالتنفيذ حيث انني اقوم برسم التفاصيل الدقيقه التي يستطيع بها التنفيذ في الموقع بدقه بالغه وكذلك تحديد الخامات وعمل جداول الكميات وحساب التكلفه من جهه اخري كذلك يستطيع مهندس الموقع او حتي العميل استلام العمل من الصنيعي بها

بطاقة العمل

اسم المستقل
عدد الإعجابات
0
عدد المشاهدات
173
تاريخ الإضافة