الرئيسية
المستقلين
Menna I.
معرض الأعمال
اطلب عمل مماثل
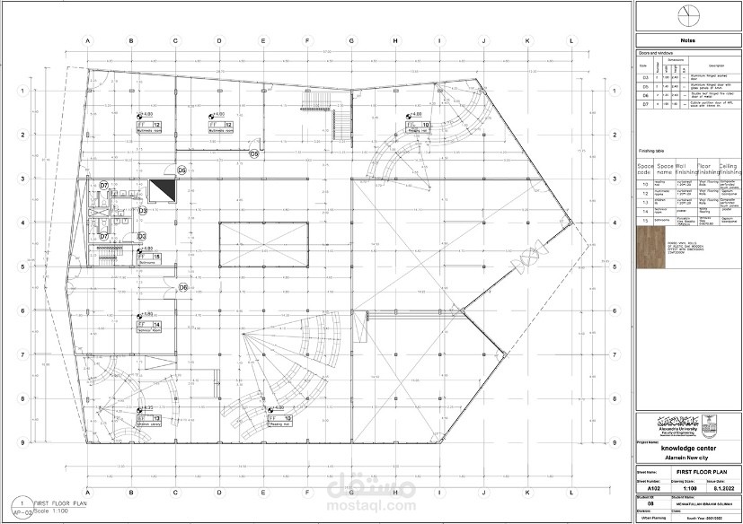
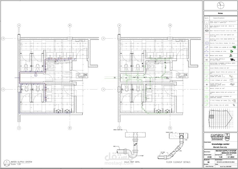
Shop Drawings-District Library
تفاصيل العمل
Shop Drawings-District Library
بطاقة العمل
اسم المستقل
Menna I.
عدد الإعجابات
0
عدد المشاهدات
21
تاريخ الإضافة
03/12/2022
تاريخ الإنجاز
01/01/2021
المهارات
ريفيت
أوتوكاد
تصميم محلات تجارية
×