تفاصيل العمل

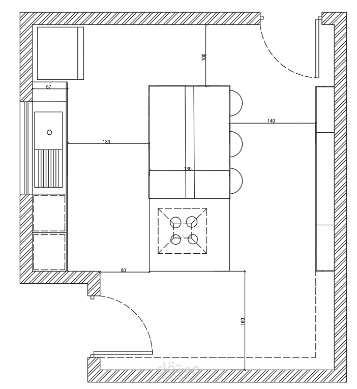
تم التصميم ب وضع ايلاند (جزيرة) مع موقد حراري مع شفط هواء ميكانيكي عبر السقف

وضع ركن طعام صغير مع التصميم الحديث يعطي شعور با الكمالية

تصميم مطبخ هاي غلوسينيس مع ديكورات جدران تهيئ الخدمة لمستخدمي الفراغ من الناحية الوظيفية والجمالية .

بطاقة العمل

اسم المستقل
عدد الإعجابات
0
عدد المشاهدات
45
تاريخ الإضافة
تاريخ الإنجاز
المهارات