الرئيسية
المستقلين
محمود ح.
معرض الأعمال
اطلب عمل مماثل
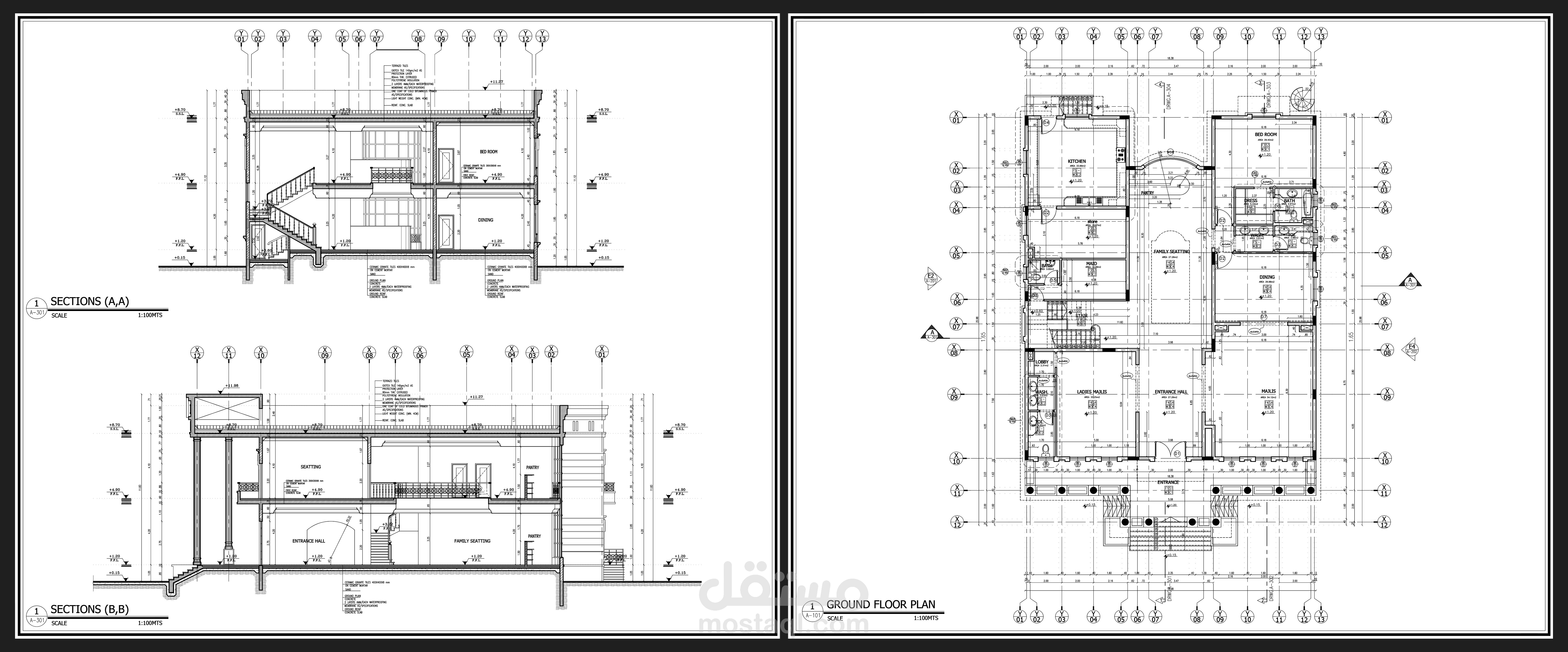
03 Private residential villa
تفاصيل العمل
Some architectural drawings for a residential villa in the United Arab Emirates
بطاقة العمل
اسم المستقل
محمود ح.
عدد الإعجابات
0
عدد المشاهدات
15
تاريخ الإضافة
23/10/2022
المهارات
أوتوكاد
تصميم معماري
هندسة معمارية
مخططات تنفيذية
تصميم فلل
×