الرئيسية
المستقلين
Gina M.
معرض الأعمال
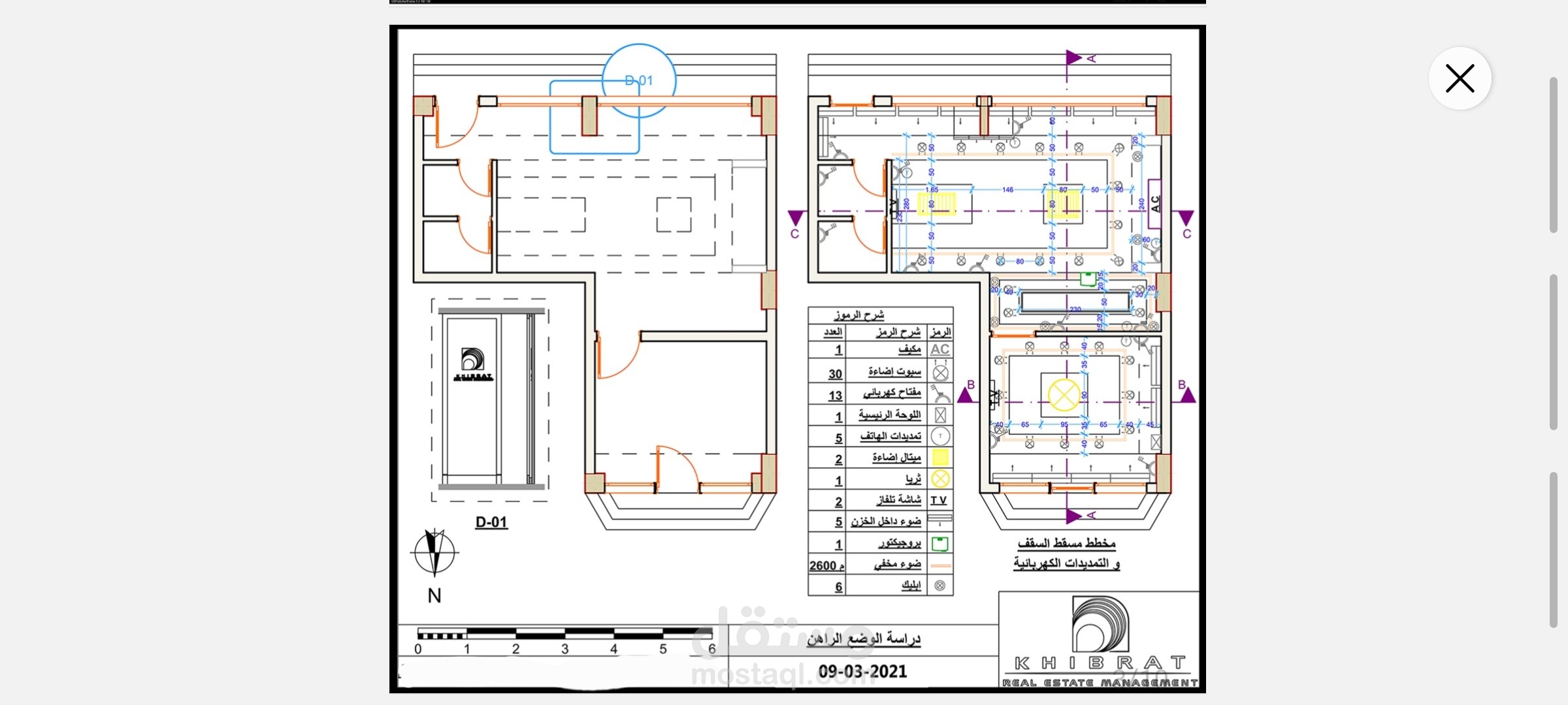
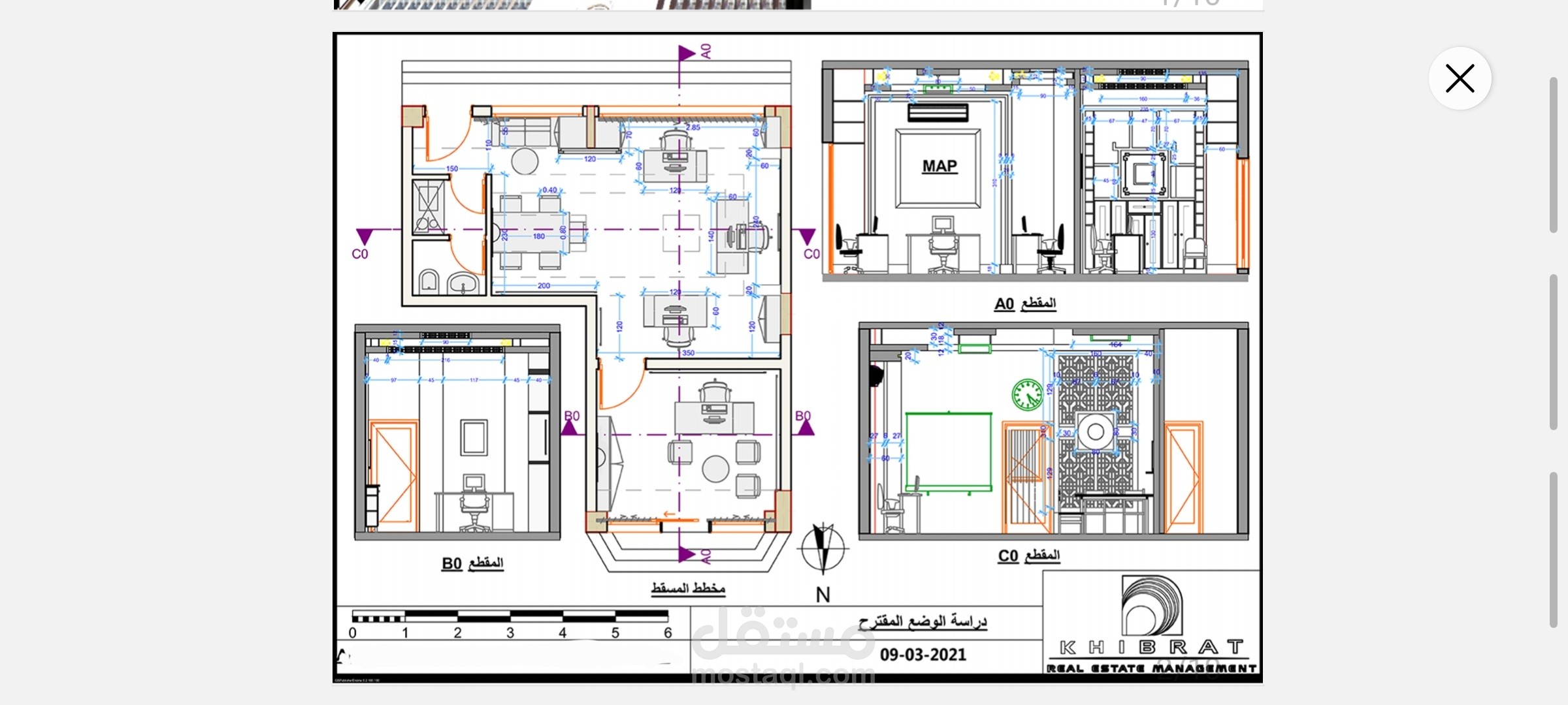
مخططات تنفيذية(shop drawing)
معرض الأعمال
اطلب عمل مماثل
تفاصيل العمل
تصميم داخلي لمكتب رسمي( خبرات)
يشمل ديكور داخلي مع مخططات تنفيذية الشاملة للسقف و الاضاءة
بطاقة العمل
اسم المستقل
Gina M.
عدد الإعجابات
0
عدد المشاهدات
59
تاريخ الإضافة
17/10/2022
تاريخ الإنجاز
16/01/2021
المهارات
تصميم 3D
تصميم نماذج 3D
3ds Max
الفكرة التصميمية
التصميم الإبداعي
فوتوشوب
هندسة معمارية
×