مخططات إنشائي ومعماري برج سندريلا ببورسعيد

تفاصيل العمل

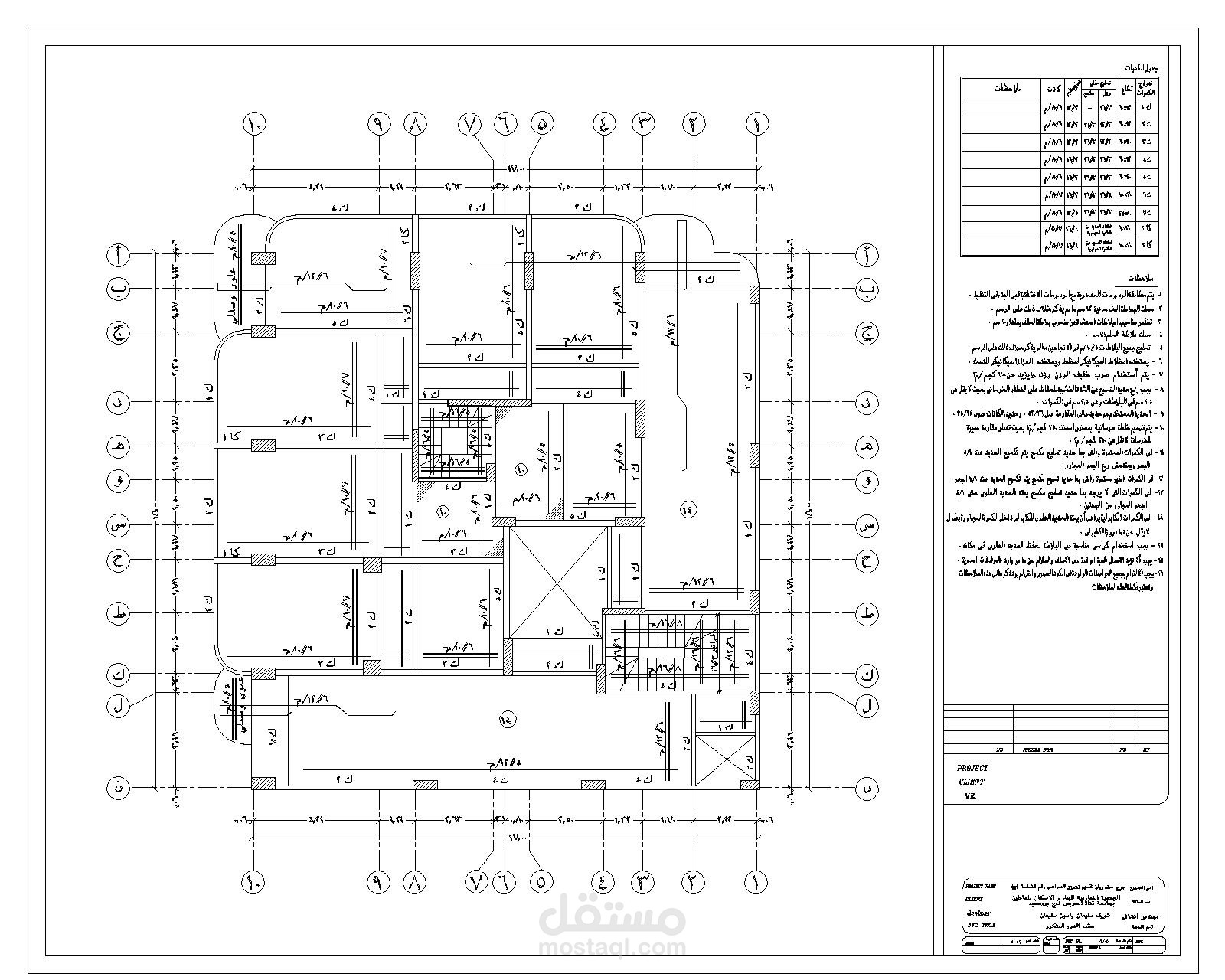
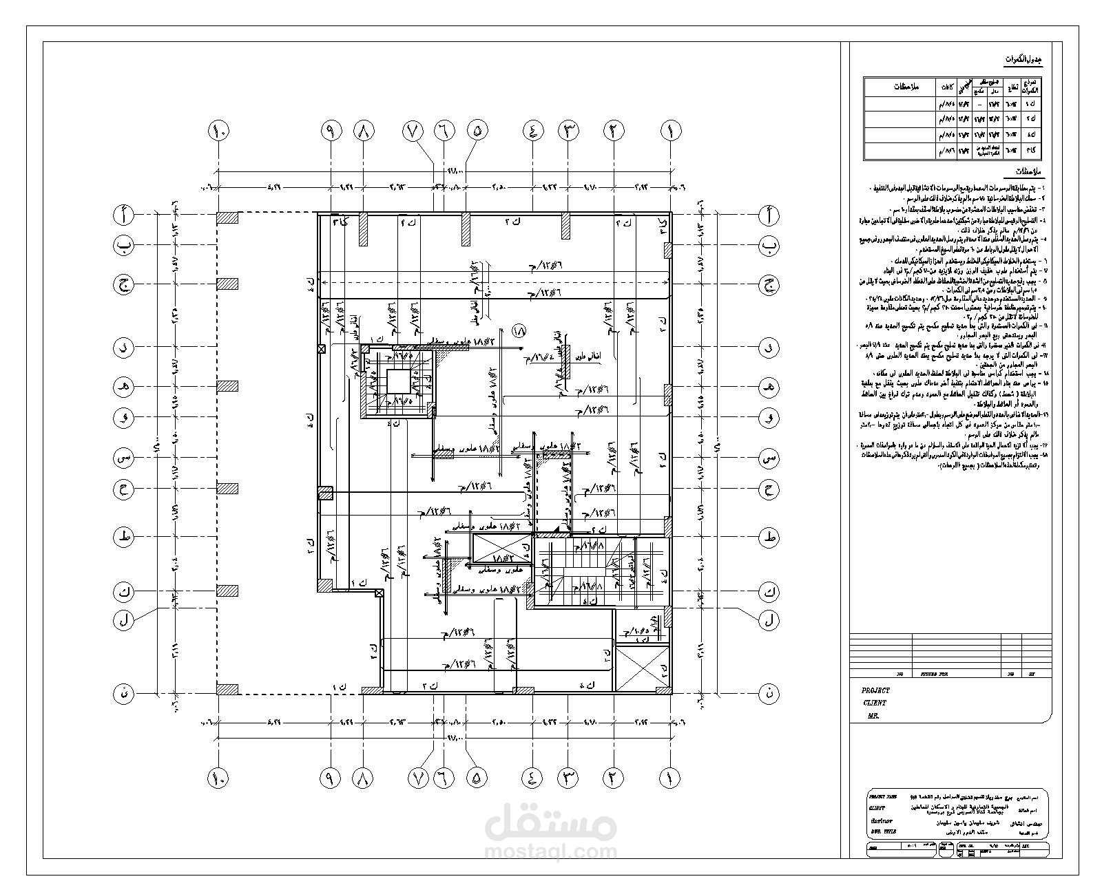
تصميم وإخراج لوحات برج سندريلا ببورسعيد .. كما تم عمل نوته حسابية لتصميم البرج واعتمادها من المجمعة العشرية

بطاقة العمل

اسم المستقل
عدد الإعجابات
0
عدد المشاهدات
124
تاريخ الإضافة