الرئيسية
المستقلين
محمود ا.
معرض الأعمال
تصميم فيلا مع قبو
معرض الأعمال
اطلب عمل مماثل
تفاصيل العمل
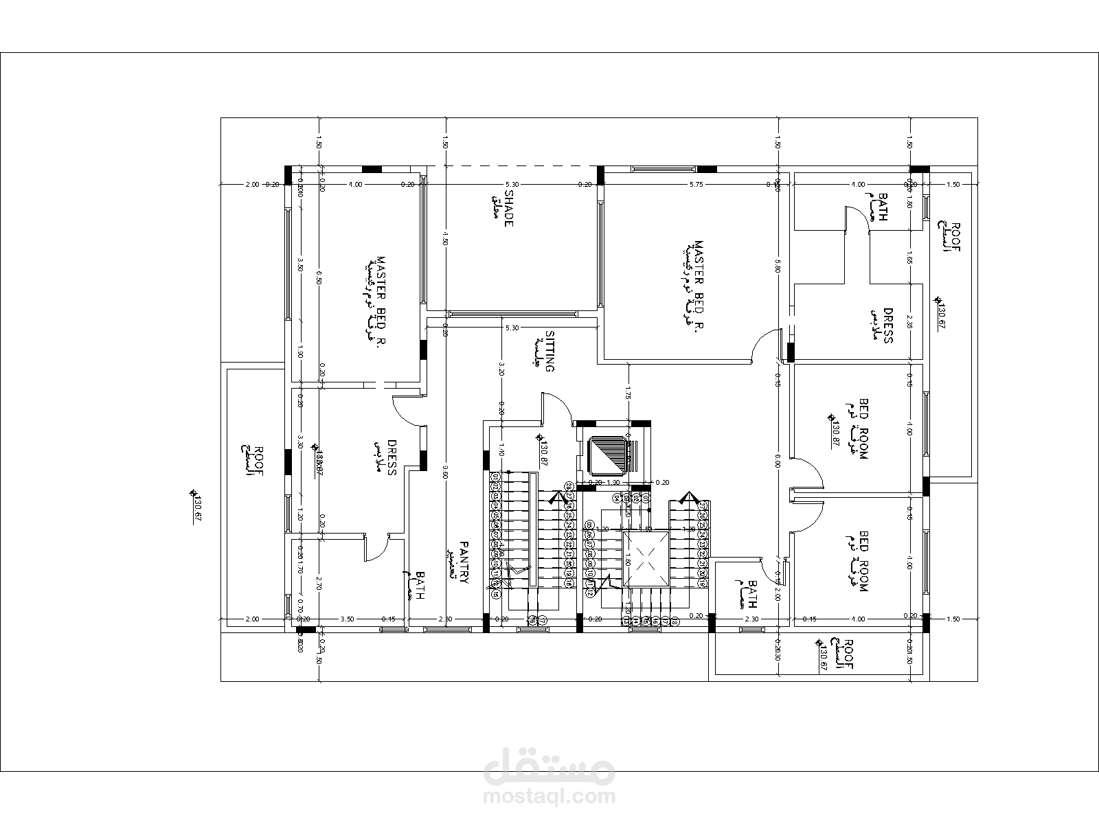
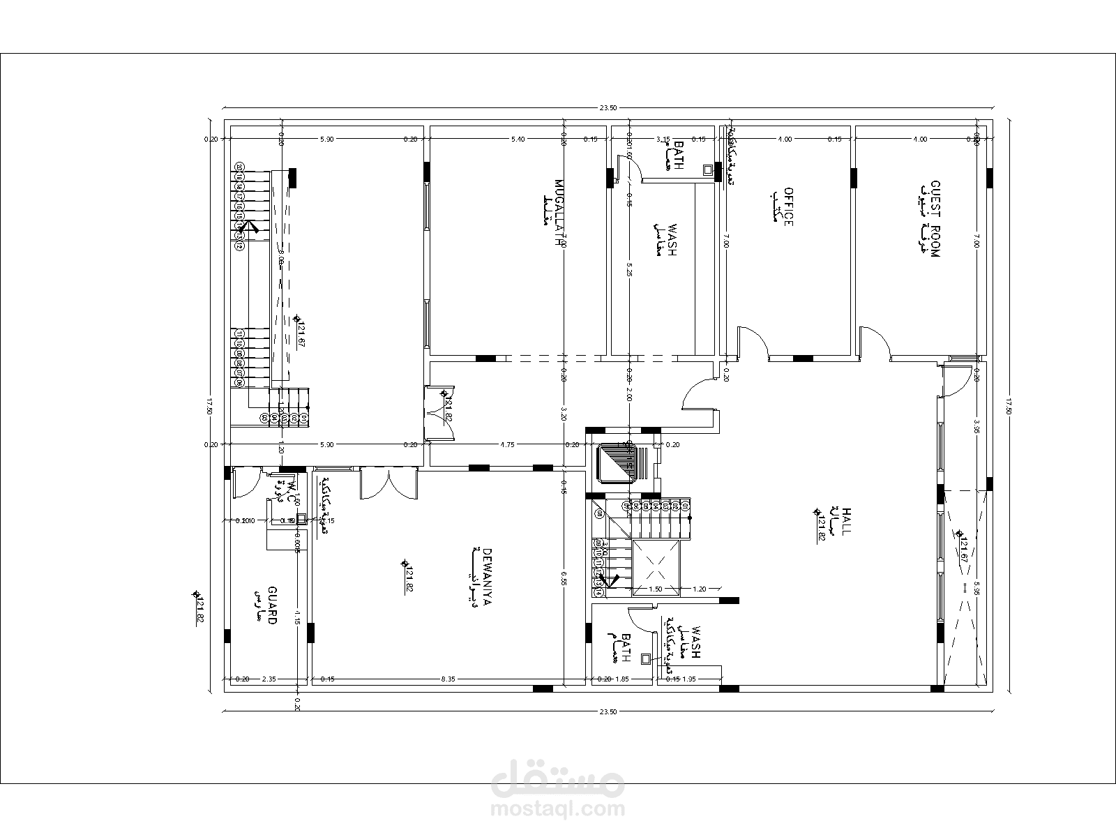
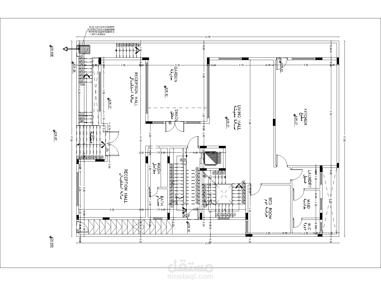
تصميم ورسم مخططات فيلا مع سرداب (قبو )
تم تصميم واعداد المخططات لصالح مكتب في المملكة
بطاقة العمل
اسم المستقل
محمود ا.
عدد الإعجابات
0
عدد المشاهدات
929
تاريخ الإضافة
06/09/2022
المهارات
البناء المعماري
الفكرة التصميمية
التصميم الإبداعي
فوتوشوب
أوتوكاد
تصميم منزل
تصميم معماري
تصميم الواجهات المعمارية
هندسة معمارية
مخططات تنفيذية
تخطيط حضري
تصميم مخططات معمارية
مخططات فلل
×