الرئيسية
المستقلين
محمود ا.
معرض الأعمال
تصميم شاليه
معرض الأعمال
اطلب عمل مماثل
تفاصيل العمل
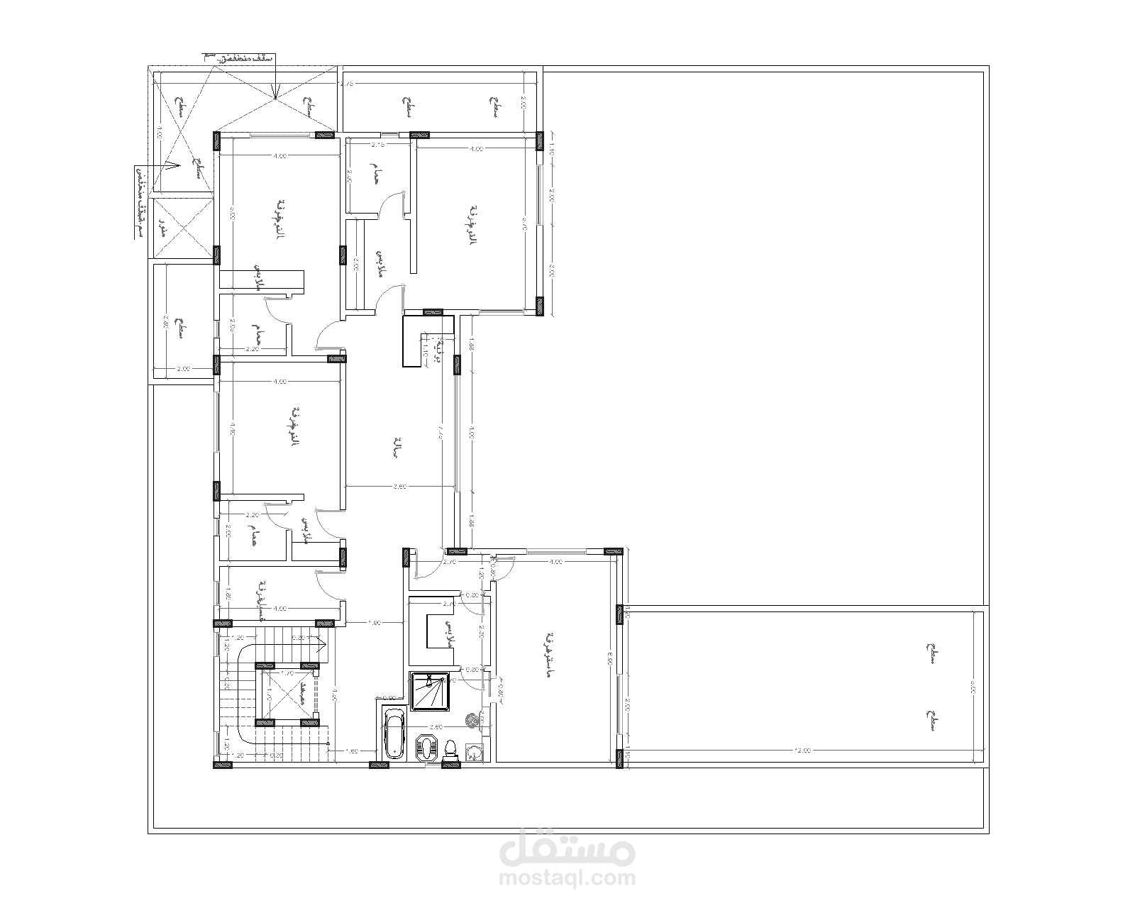
تصميم فيلا لتكون شالايه صيفية للاستثمار الصيفي
بطاقة العمل
اسم المستقل
محمود ا.
عدد الإعجابات
0
عدد المشاهدات
164
تاريخ الإضافة
05/09/2022
المهارات
تصميم 3D
البناء المعماري
الفكرة التصميمية
فوتوشوب
أوتوكاد
تصميم معماري
تصميم الواجهات المعمارية
هندسة معمارية
مخططات تنفيذية
تصميم مخططات معمارية
مخططات فلل
×