الرئيسية
المستقلين
Mohamed E.
معرض الأعمال
اطلب عمل مماثل
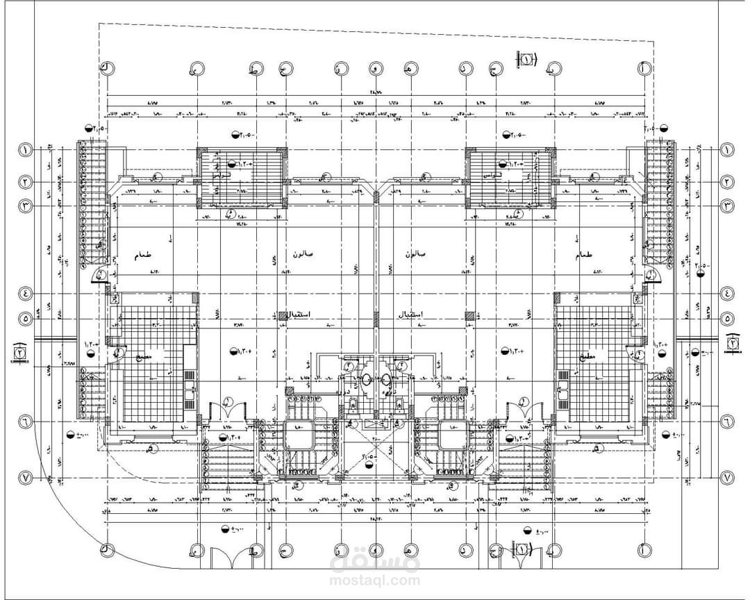
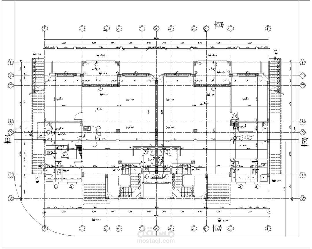
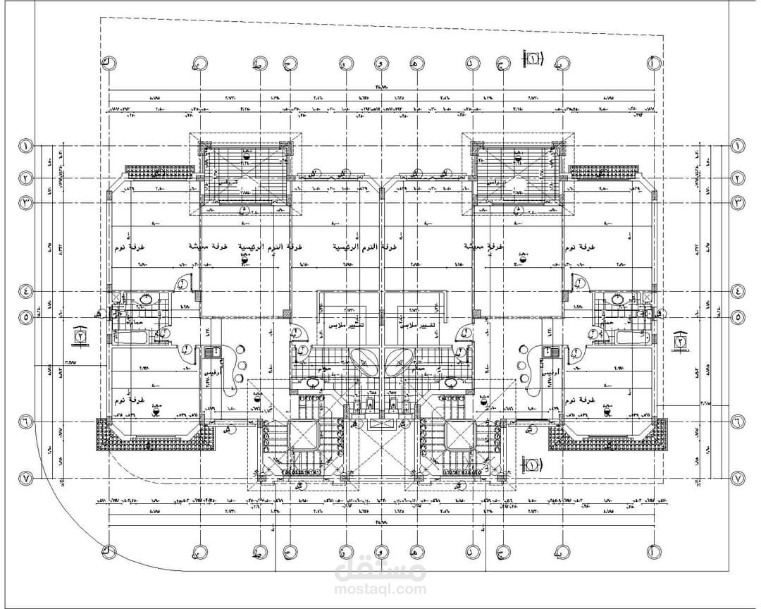
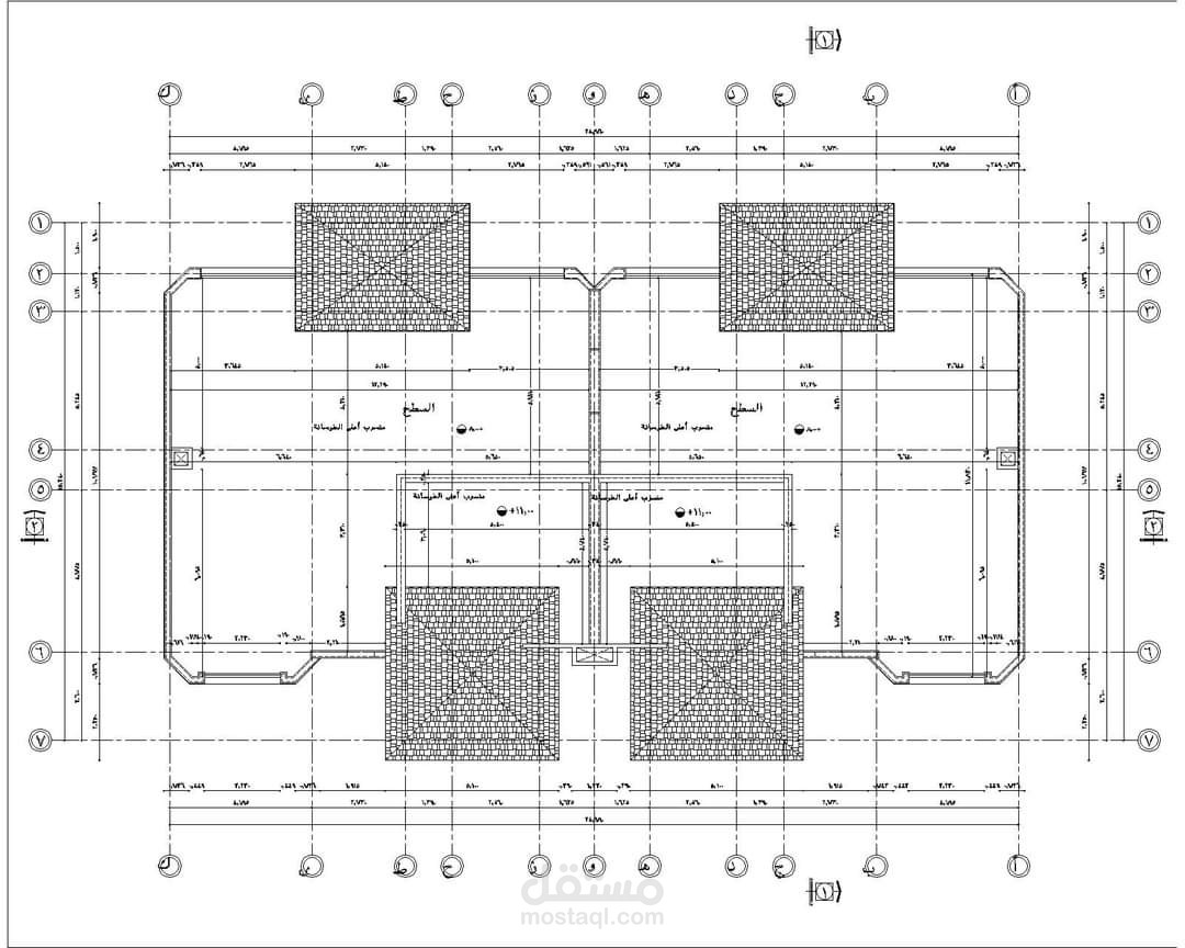
فيلا تاون هاوس
تفاصيل العمل
مشروع شوب دروينج معماري لفيلا سكنية تاون هاوس بالقاهرة
بطاقة العمل
اسم المستقل
Mohamed E.
عدد الإعجابات
0
عدد المشاهدات
22
تاريخ الإضافة
16/08/2022
المهارات
ريفيت
أوتوكاد
×