تفاصيل العمل

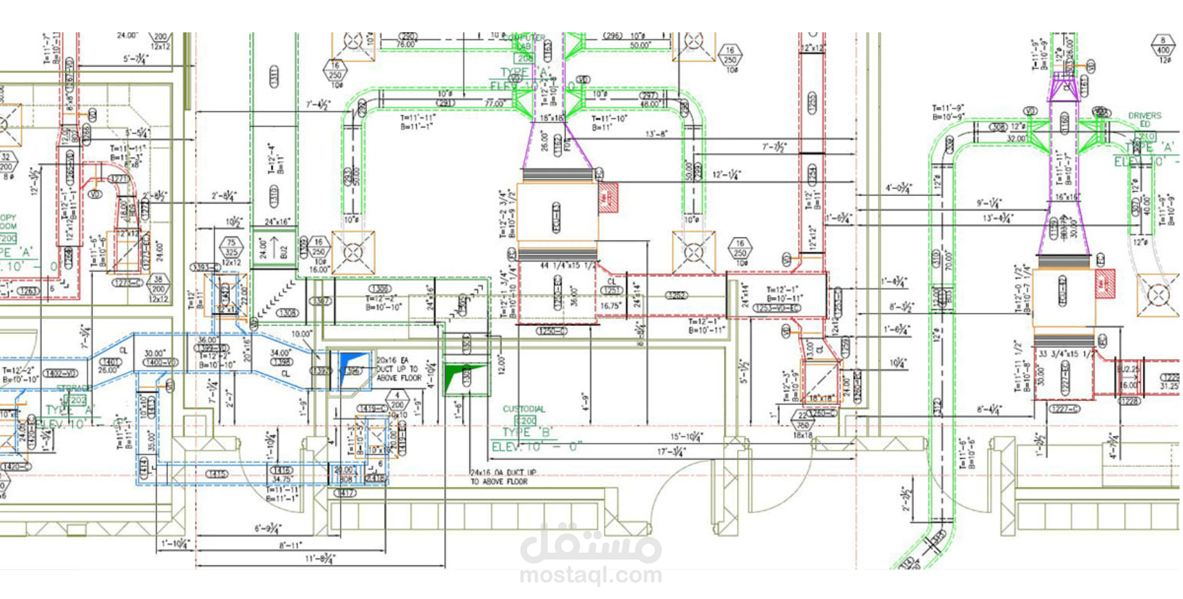
Hvac (chilled & duct) design and Shop drawings

Firefighting design and Shop drawings

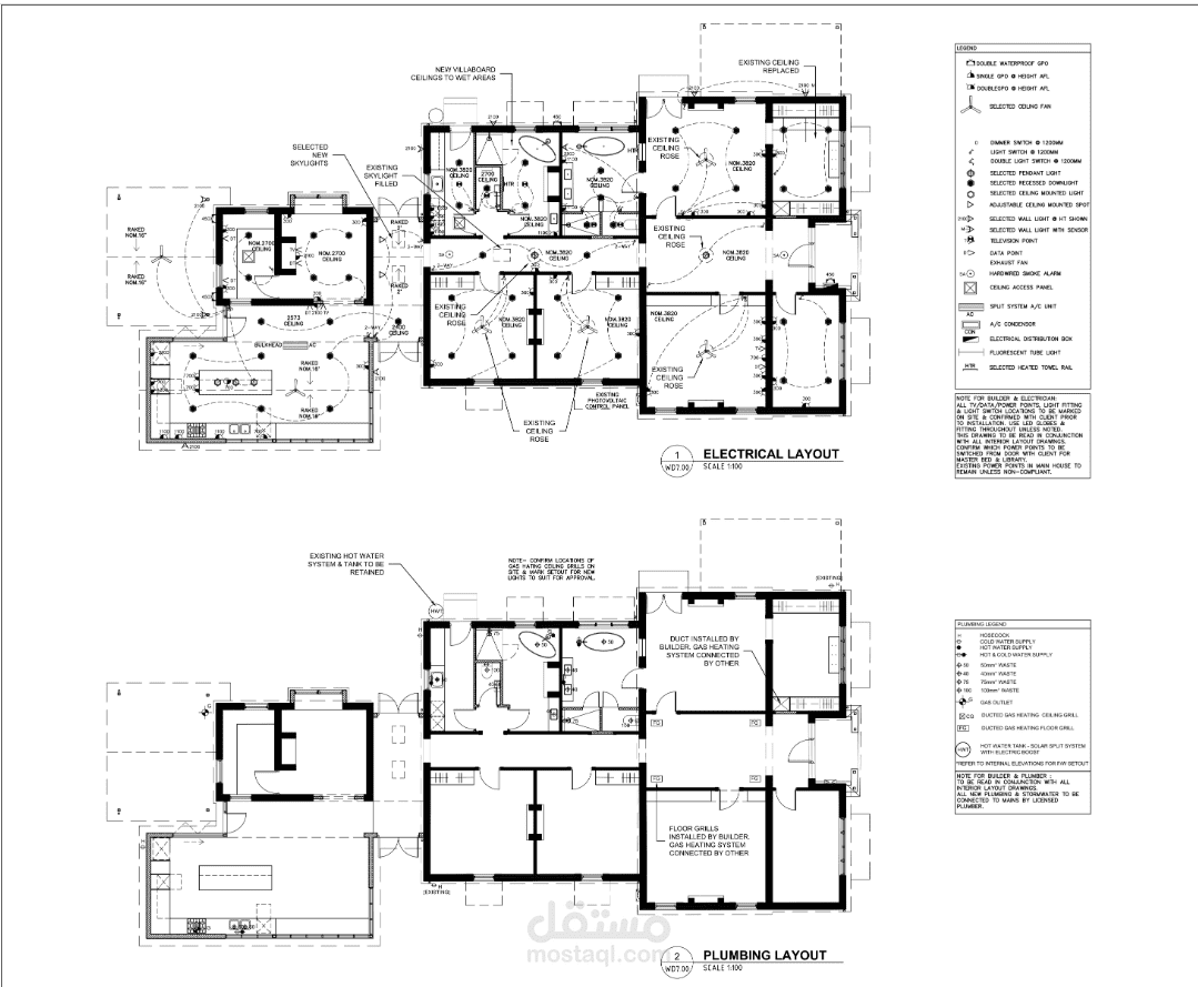
Plumbing (Drainage + water supply) design and Shop drawings

De smoke systems design and shop drawings

Quantity take off for all systems

Cooling and heating loads using HAP

-----------------------------------------------------------------------------

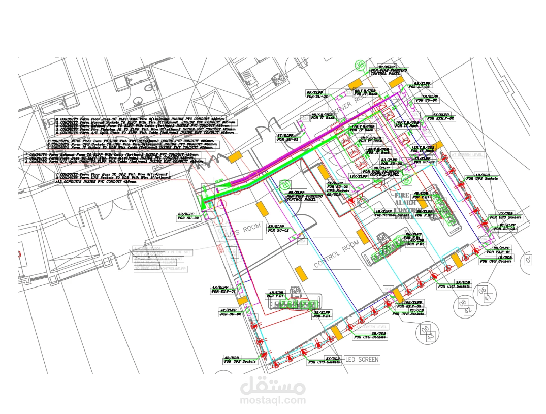
Design & shop drawing for lighting and low voltage systems

- preparing load distribution schedule & cable size calculations

- quantities take off for the different electrical systems

-Design & shop drawing for low current and security systems (fire alarm, CCTV, SMATV, TEL, video intercom, access control)

-----------------------------------------------------------------------------

Hvac (control system- BMS) design, Shop drawings, panels design and programming, final system setup and calibration as well.

GRMS design and Shop drawings

FIRE ALARM design and Shop drawings

ACCESS CONTROL design and Shop drawings

بطاقة العمل

اسم المستقل
عدد الإعجابات
0
عدد المشاهدات
470
تاريخ الإضافة