تفاصيل العمل

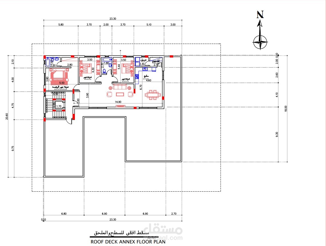
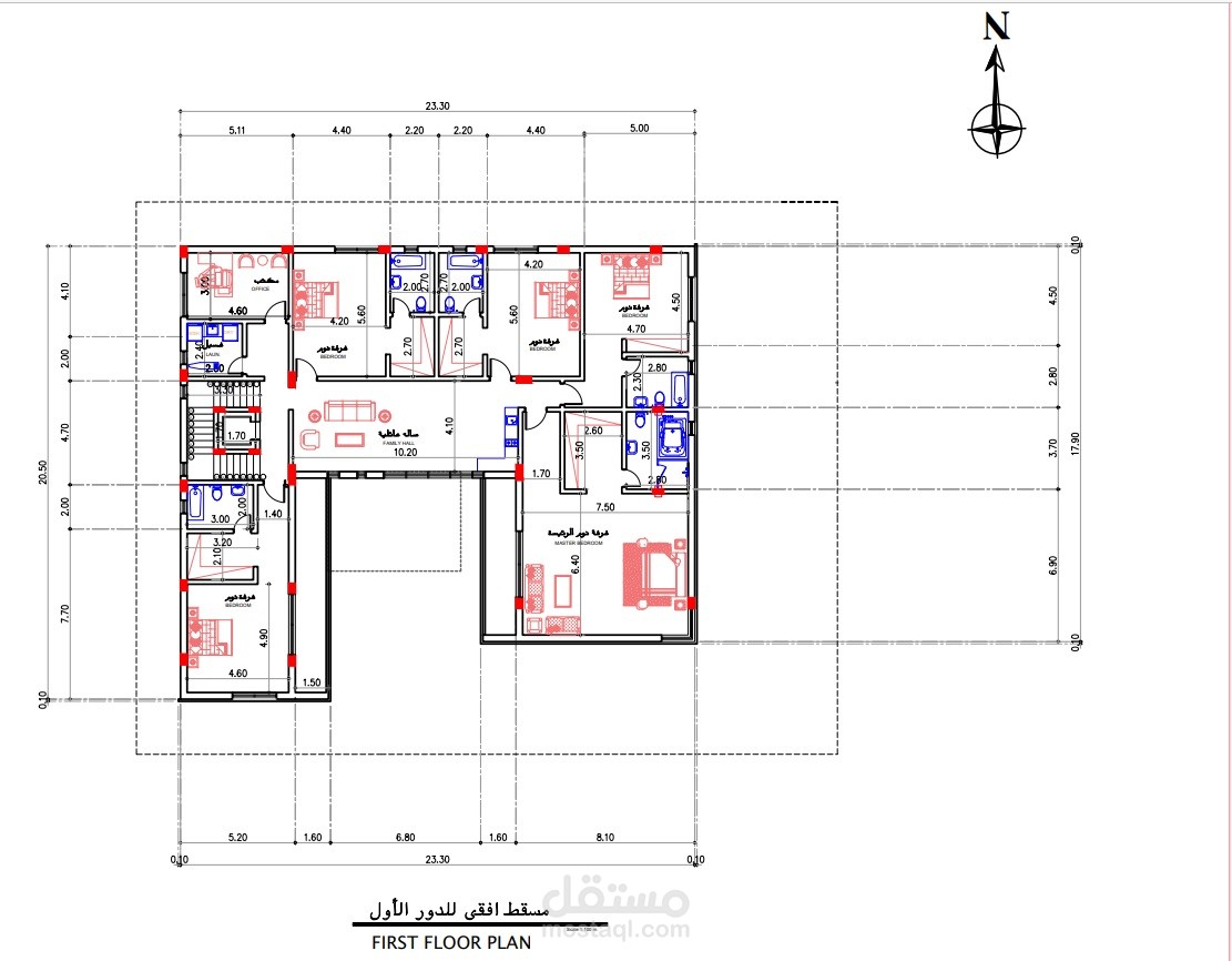
تم بحمد الله تصميم فيلا لعميل لدي من السعودية حيث تم تصميم الفيلا بناء على طلبات العميل وفقا لتحديث البناء السعودي 2022 وتم تصميم العمل من قبلي بشكل احترافي جدا من جميع النواحي حيث كان التصميم يحتوي افضل استغلال للمساحات وإعطاء تصميم يوحي بالراحة والجمال بحسب طلبات العميل وبحمد الله اعجب العميل بالعمل بشكل كبير وتم اعتماد العمل من قبل البلدية السعودية من اول ارسالية دون أخطاء في التصميم وهذه كله بفضل خبرتي الكبيرة ومتابعتي المستمرة لتحديثات البلدية حيث كان التصميم لوحة فنية من جميع النواحي , الناحية الجمالية والاستغلال الأفضل للمساحات

شكرا لكم .

ملفات مرفقة

بطاقة العمل

اسم المستقل
عدد الإعجابات
1
عدد المشاهدات
75
تاريخ الإضافة
تاريخ الإنجاز
المهارات