تفاصيل العمل

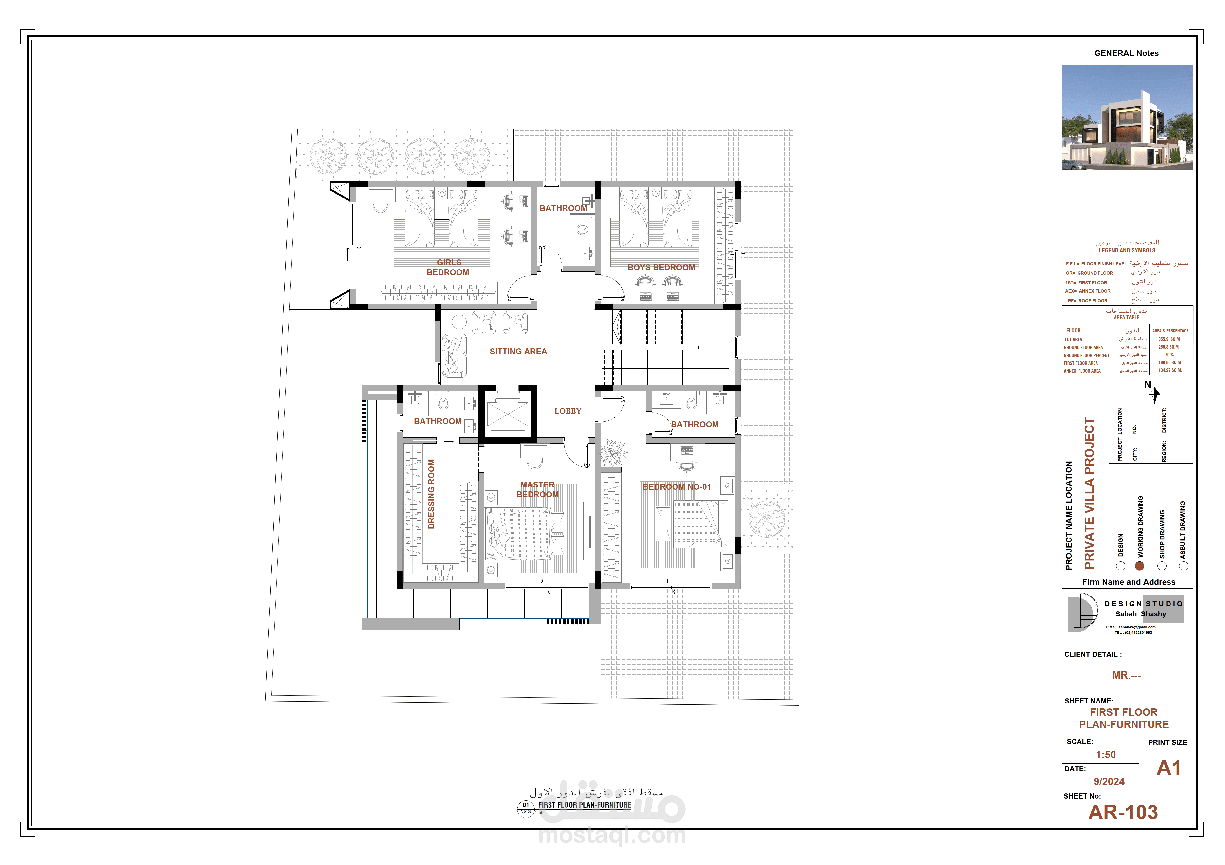
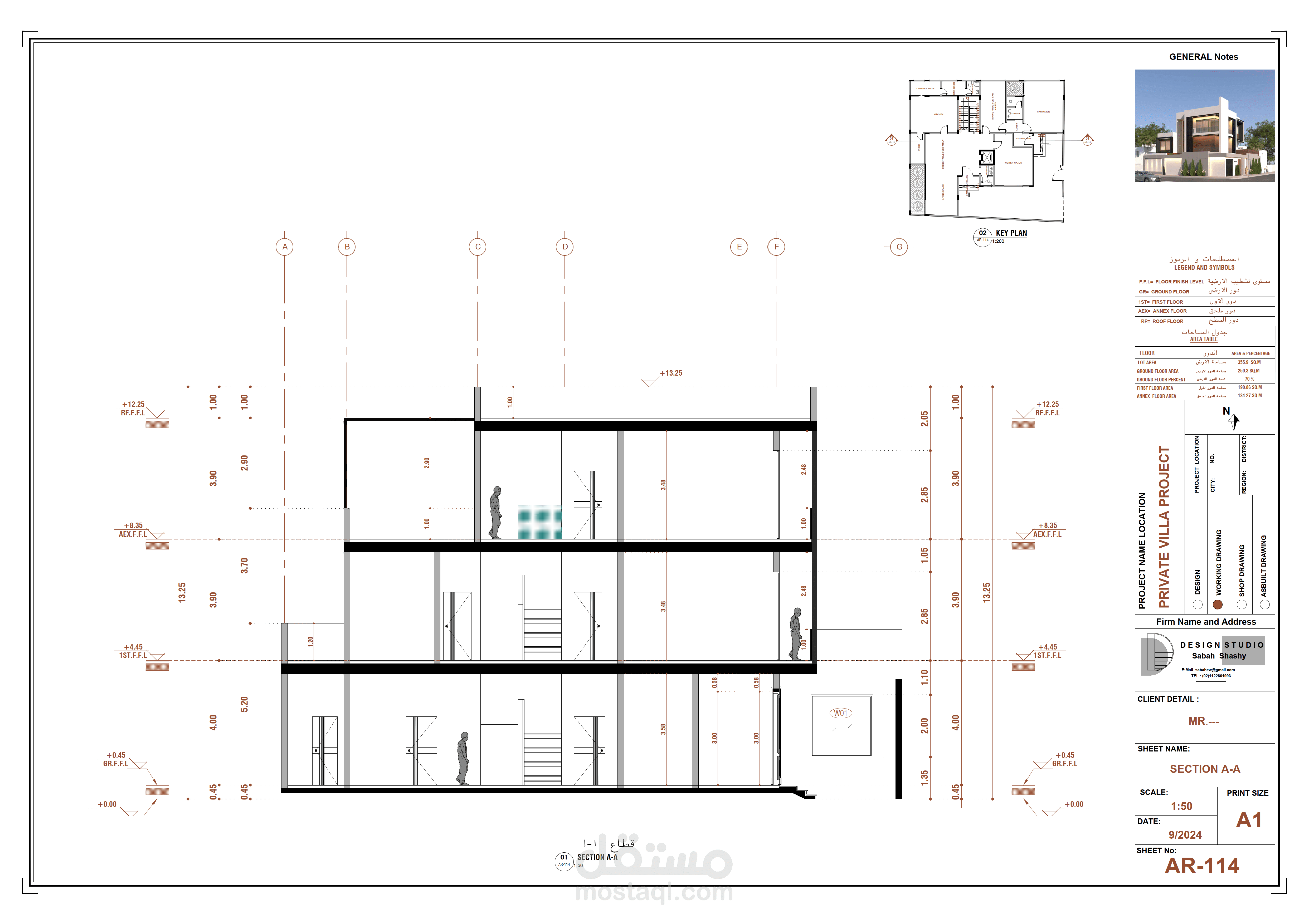
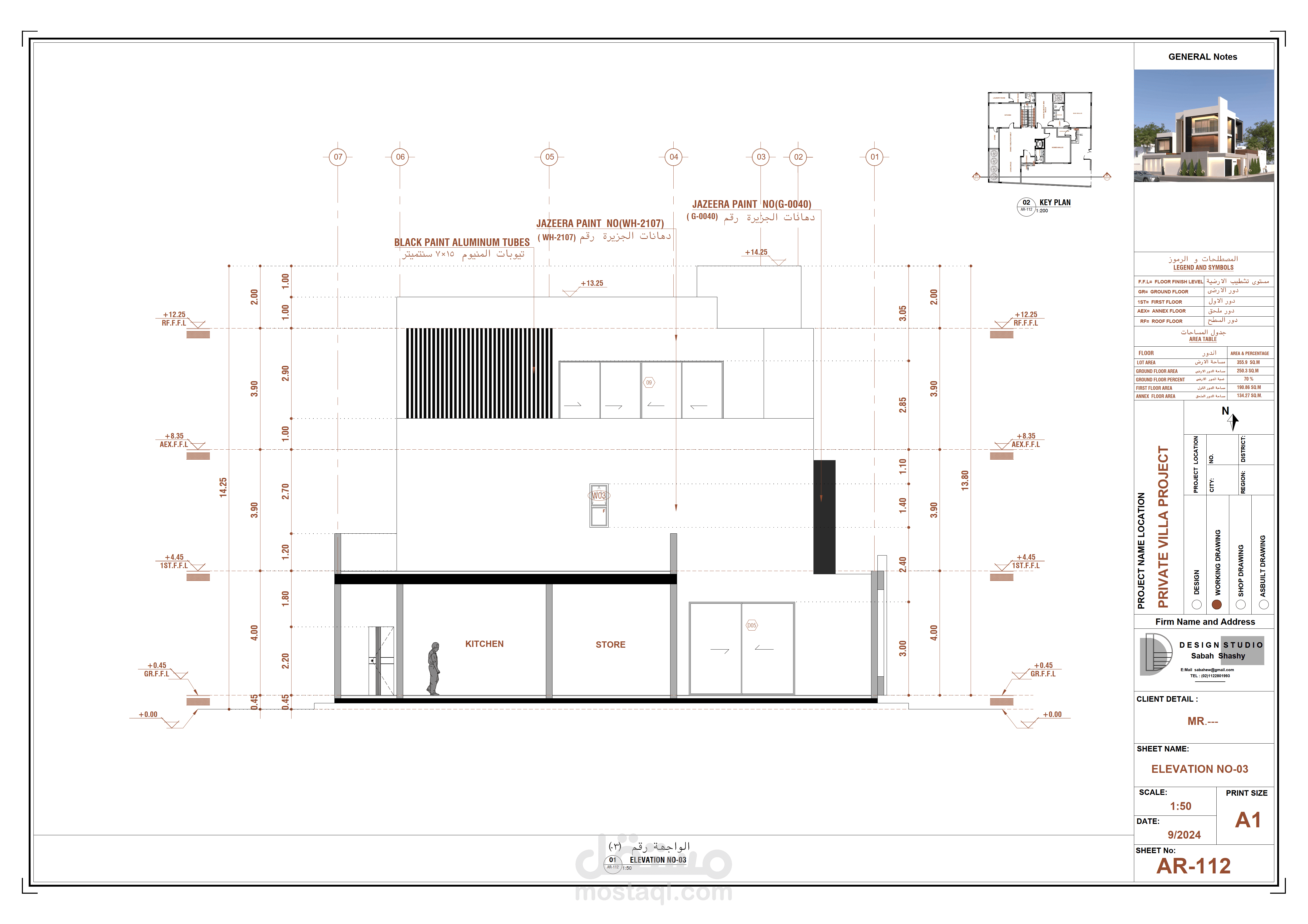
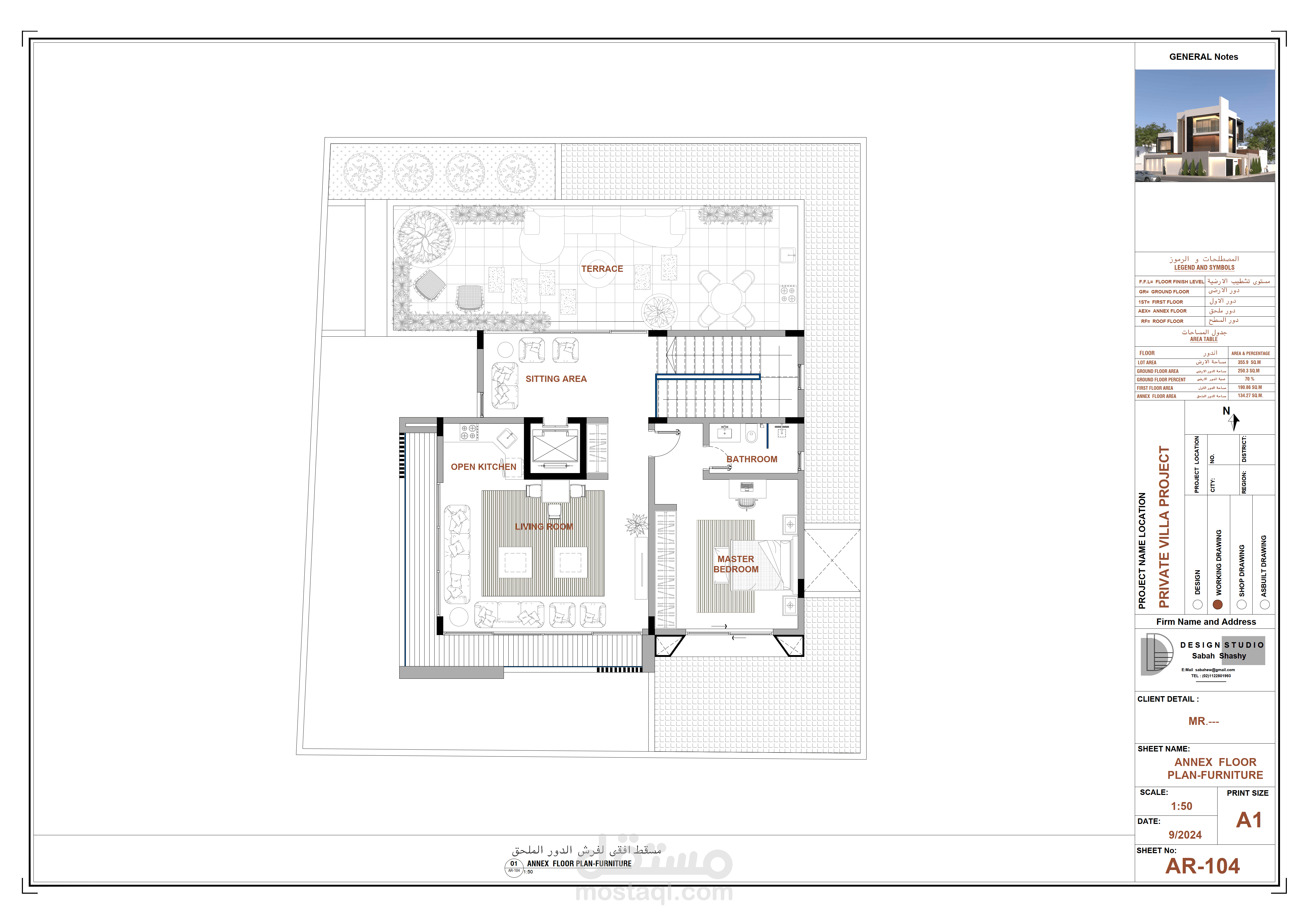
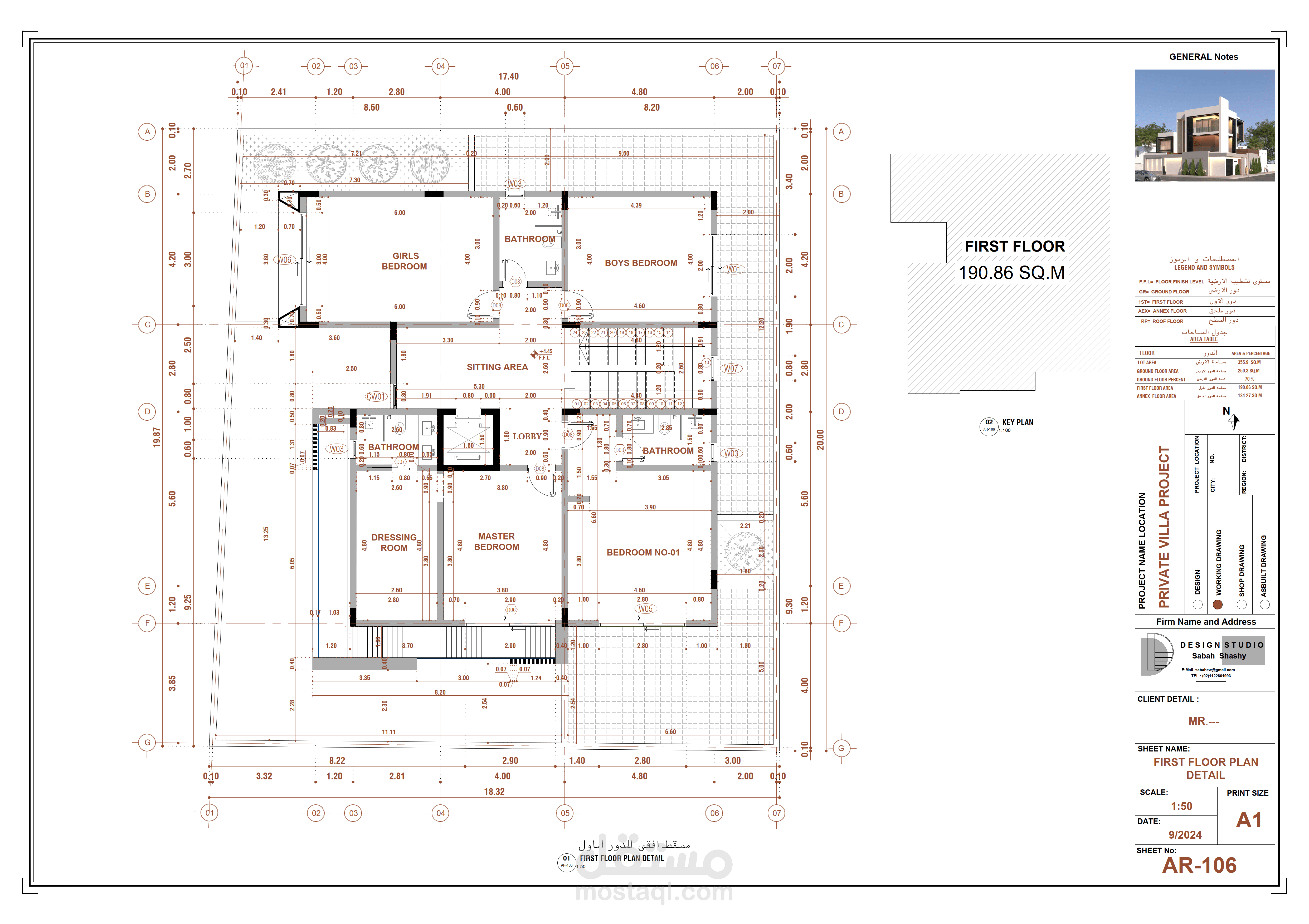
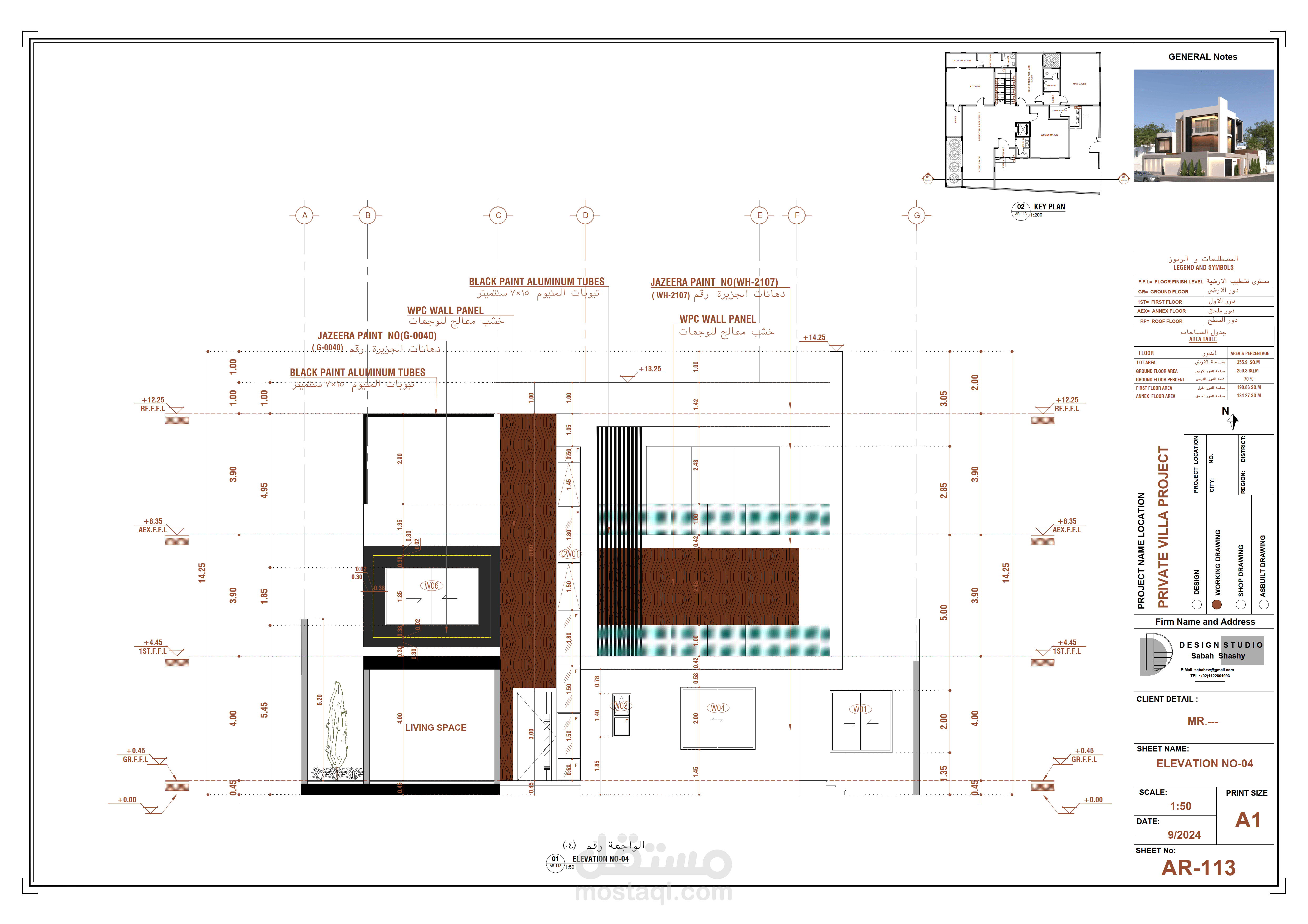
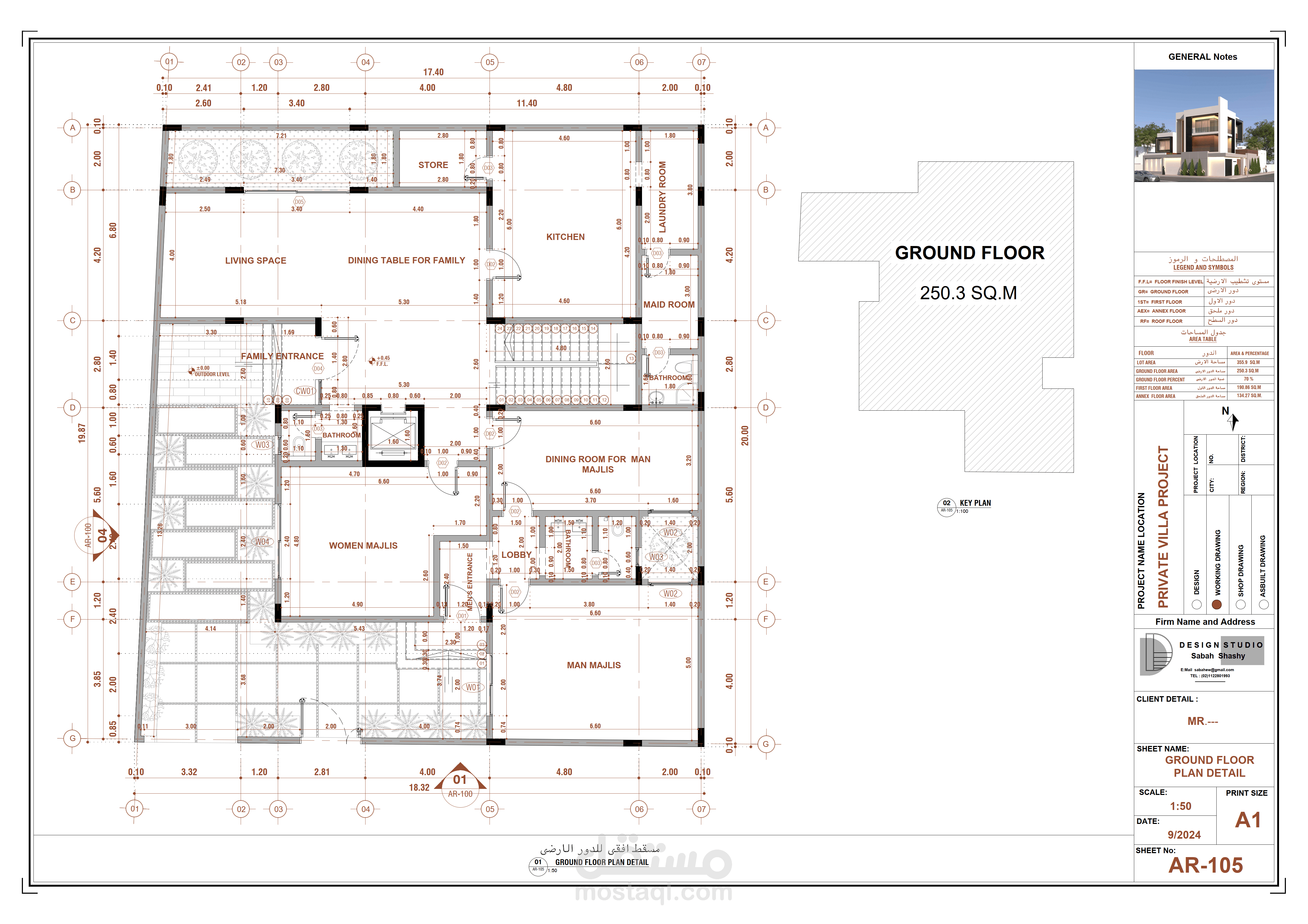
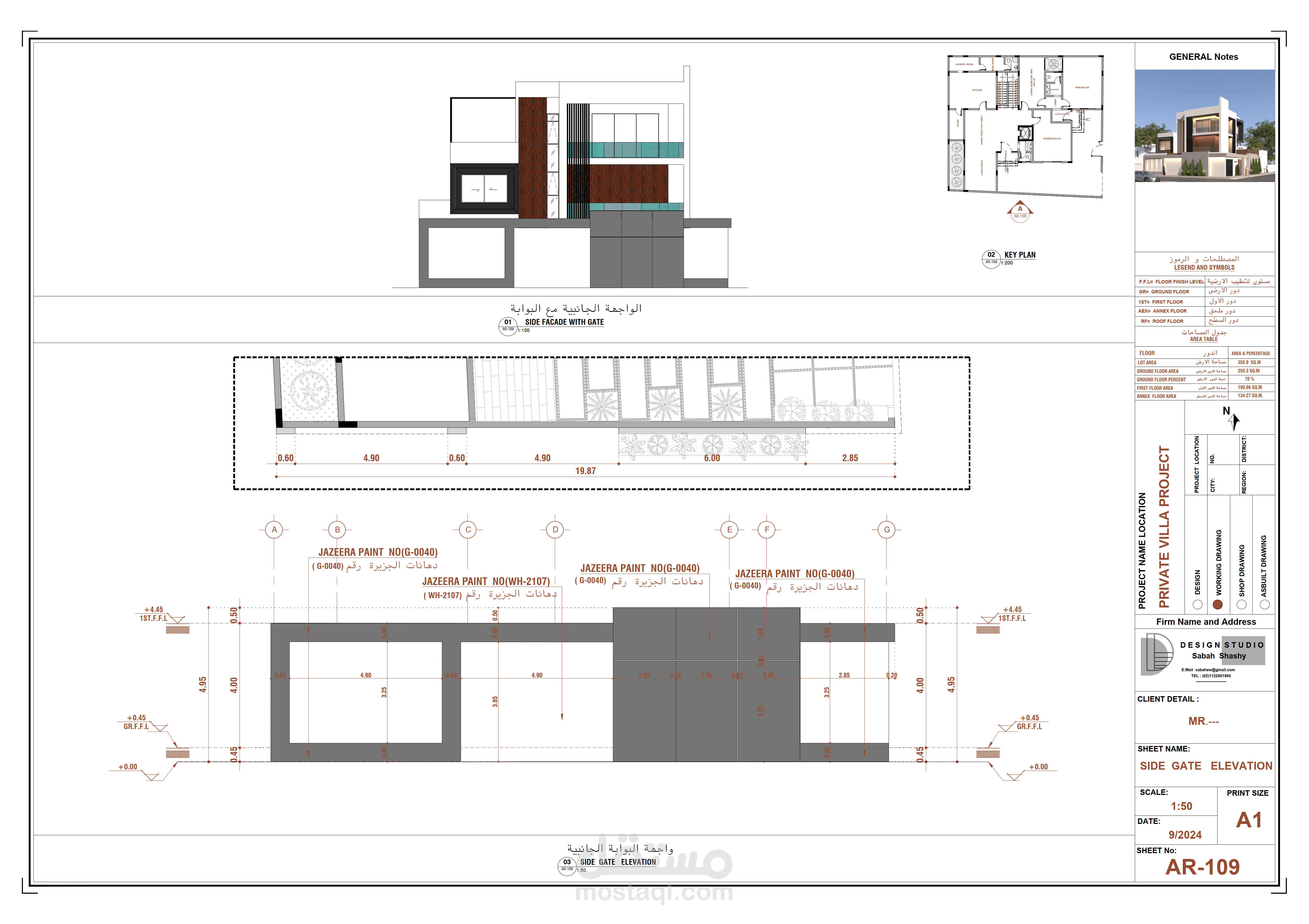
المشروع عبارة عن فيلا خاصة فى السعودية تتكون من دور ارضى واول وملحق تم عمل التصميم المعمارى بفضل الله وعمل اللوحات التنفيذية المعمارية الخاصة بالفيلا .

بطاقة العمل

اسم المستقل
عدد الإعجابات
0
عدد المشاهدات
123
تاريخ الإضافة
تاريخ الإنجاز
المهارات