إنشاء مخططات مشاريع إنشائية بنظام 3D Modeling وباستخدام تقنية BIM بواسطة برنامج Revit

تفاصيل العمل

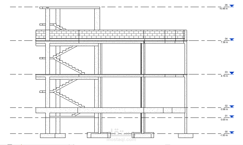
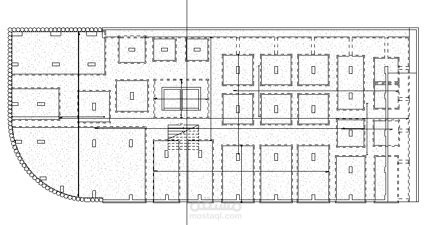
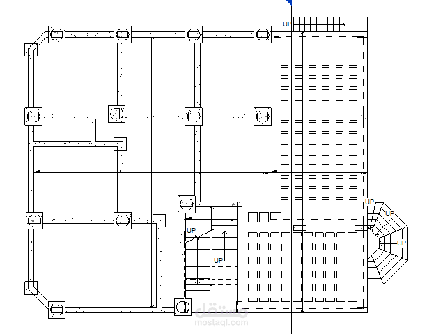
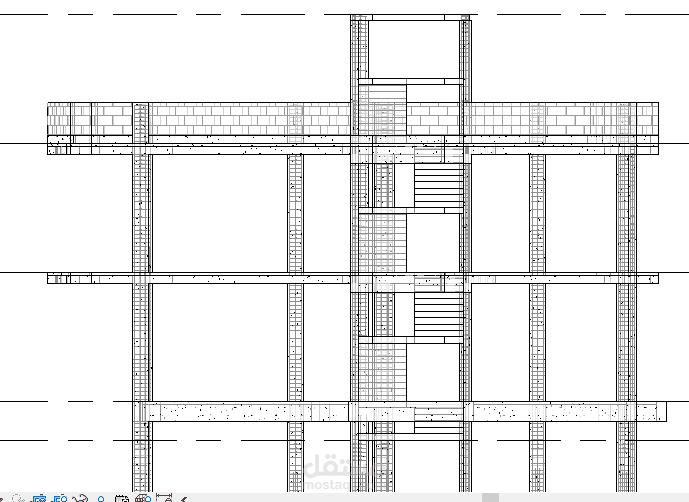
قمت مؤخراً برسم مخططات خمس مشاريع إنشائية على برنامج Structural Revit تحتوي على جميع التفاصيل الإنشائية والمعلومات اللازمة لعملية البناء، باستخدام تقنية Building Information Modeling أو ما تعرف ب BIM، يقوم مهندس التصميم والتنفيذ بقراءة هذه المخططات بسهولة تامة واستخدامها فيما بعد في البرامج التصميمية الأخرى للتحليل والتصميم التي تدعم تقنية BIM، فضلاً على قراءته كافة المعلومات اللازمة حول عملية البناء من نوع المادة ومواصفاتها والأبعاد الحقيقة للعنصر وكميات المشروع بشكل دقيق، مما يساعد على تقليل الأخطاء في التنفيذ والتعارضات بين الاختصاصات المختلفة أثناء التنفيذ.

بطاقة العمل

اسم المستقل
عدد الإعجابات
0
عدد المشاهدات
452
تاريخ الإضافة
تاريخ الإنجاز
المهارات